10 Fox Hill Rd, Newton MA  02459-3027 exterior 10 Fox Hill Rd, Newton MA  02459-3027 exterior 10 Fox Hill Rd, Newton MA  02459-3027 exterior

10 Fox Hill Rd Newton, MA 02459 / 3027

Residence for Single Family

(UPDATED: 07/20/2025)
  • 3 Beds
  • 2 Baths
  • 3.094 square feet
Property Report

Information about property on 10 Fox Hill Rd, Newton MA, 02459-3027. Find out owner contacts, building history, price, neighborhood at Homemetry Address Directory.

Property Details

At 10 Fox Hill Road, Newton, MA stands a property, which was built in 1955.

Facts

  • Built in 1955
  • Property use Single Family
  • Lot size 12,406 sqft
  • Effective area 2,374 sqft
  • Gross building area 3,094 sqft
  • Building type Residential
  • Rooms 8
  • Bedrooms 3
  • Bathrooms 2
  • Stories 1
  • Exterior condition Average
  • Trim Half Wall
  • Foundation type Concrete
  • Roof material Asphalt Shingl
  • Fuel type Gas
  • Air conditioning None
  • Frontage 180 feet
  • Basement area 1,440 sqft
  • Finished basement area 720 sqft
  • Porch area 60 sqft
  • Enclosed porch area 154 sqft
  • Heating & Cooling
  • Heat type Hot Water
  • Exterior Home Features
  • Exterior walls Wood Shingle
  • Roof type Gable

Features

  • Interior condition: Good

Householders and Tenants for 10 Fox Hill Rd, Newton MA

Possible residents contact details

Person Name Phone Number Additional Info
Allen G Rubin Age: 95
617-969-****
Residential status:
Homeowner
Job:
Retired
Hyman Gitell
Muriel H Zase
OXFORD CONSTRUCTION & DESIGN LLC
Richard B Rubin Age: 56
Ronald F Wippern
Rose Gitell
Sandra Rubin Age: 88
Residential status:
Homeowner
Job:
Protective Service Occupations
Sandy L Rubin Age: 88
617-969-****
Selig G Zase
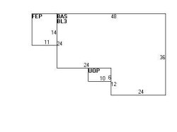
10 Fox Hill Rd, Newton MA  02459-3027 plot plan 10 Fox Hill Rd, Newton MA  02459-3027 floor plan 10 Fox Hill Rd, Newton MA  02459-3027 aerial view

Cost estimate history

YearAssessment
2016 $767,600
2015 $717,400
2014 $683,100
2013 $683,100
2012 $683,100
2011 $683,700
2010 $697,700
2009 $711,900
2008 $711,900
2007 $739,100
2006$717,600
2005$683,400
2004$644,600
2003$575,500
2002$575,500
2001$459,900
2000$420,000
1999$382,200
1998$332,200
1997$332,200
1996$316,400
1995$285,000
1994$271,400
1993$271,400
1992$293,600

Where is 10 Fox Hill Rd, Newton MA located on map?

Market Activities

To date, we have no information about market activities in 2025
May 2021 Recent Rent
10 Fox Hill Rd
Price history :
  • Single Family
  • 5,865 sqft
  • 5 beds
  • 7 baths
Apr 2016 Sold
10 Fox Hill Rd
Price history :
  • Single-Family Home
  • 1,440 sqft
  • 3 beds
  • 3 baths
Apr 2016 Sold
10 Fox Hill Rd
Price history :
  • Single-Family Home
  • 1,440 sqft
  • 3 beds
  • 3 baths

View more

Fox Hill Rd Incidents registered in FEMA
(Federal Emergency Management Agency)

To date, we have no information about incidents registered in FEMA in 2025
15 Oct 2005 Electrical wiring/equipment problem, other
Property Use —
1 or 2 family dwelling
25 Jun 2003 Unintentional transmission of alarm, other
Property Use —
1 or 2 family dwelling
22 Feb 2003 Rescue, emergency medical call (EMS) call, other
Property Use —
1 or 2 family dwelling
17 Feb 2003 Rescue, emergency medical call (EMS) call, other
Property Use —
1 or 2 family dwelling

View more

Properties Nearby

Street AddressResidens/Landlords
15 Fox Hl Rd, Newton, MA 02459-3026
Single Family
  • 3 beds
  • 1.5 baths
  • 2,450 sqft
  • Built in 1955
Phyllis D Berman, Jeffrey Wade
18 Fox Hl Rd, Newton, MA 02459-3027
Single Family
  • 4 beds
  • 4.5 baths
  • 5,546 sqft
  • Built in 2001
IRWIN D LAZARUS REALTY TRUST /S TRS, Felice B Lazarus
23 Fox Hl Rd, Newton, MA 02459-3026
Single Family
  • 4 beds
  • 3 baths
  • 4,442 sqft
  • Built in 1955
LEWIS KAREN LIVINGSTON &AL, Craig A Lewis
26 Fox Hl Rd, Newton, MA 02459-3027
Single Family
  • 4 beds
  • 3.5 baths
  • 6,275 sqft
  • Built in 2010
Alysson Greene, Zachary A Greene
31 Fox Hl Rd, Newton, MA 02459-3026
Single Family
  • 3 beds
  • 1.5 baths
  • 5,013 sqft
  • Built in 1924
AMY K WORTH REVOCABLE TRUST 2004, Robert J Worth
37 Fox Hl Rd, Newton, MA 02459-3026
Single Family
  • 4 beds
  • 2 baths
  • 6,992 sqft
  • Built in 2014
Alexander Linkov, ROHAN FOUNDATION INC
40 Fox Hl Rd, Newton, MA 02459-3027
Single Family
  • 3 beds
  • 2.5 baths
  • 3,235 sqft
  • Built in 1949
Yakov L Leikin, Faina Bograd
45 Fox Hl Rd, Newton, MA 02459-3026
Single Family
  • 3 beds
  • 1 bath
  • 3,400 sqft
  • Built in 1955
DOROTHY MAE CASLER FAMILY TRUST, CASLER DOROTHY MAE TR
Irene Sakillaris, Michael A Sakillaris
 

FAQ about the house at 10 Fox Hl Rd, Newton, MA


NOTICE: You may not use RadioAwards or the information it provides to make decisions about employment, credit, housing or any other purpose that would require Fair Credit Reporting Act (FCRA) compliance. RadioAwards is not a Consumer Reporting Agency (CRA) as defined by the FCRA and does not provide consumer reports.