10 Fairlee Rd, Newton MA  02468-2036 exterior

10 Fairlee Rd Newton, MA 02468 / 2036

Residence for Single Family

(UPDATED: 08/21/2025)
  • 3 Beds
  • 2 Baths
  • 3.702 square feet
Property Report

Information about property on 10 Fairlee Rd, Newton MA, 02468-2036. Find out owner contacts, building history, price, neighborhood at Homemetry Address Directory.

Property Details

At 10 Fairlee Road, Newton, MA stands a property, which was built in 1935.

Facts

  • Built in 1935
  • Property use Single Family
  • Lot size 7,610 sqft
  • Effective area 3,312 sqft
  • Gross building area 3,702 sqft
  • Building type Residential
  • Rooms 8
  • Bedrooms 3
  • Stories 2
  • Exterior condition Average
  • Trim None
  • Foundation type Concrete
  • Roof material Asphalt Shingl
  • Fuel type Gas
  • Air conditioning Central
  • Frontage 65 feet
  • Finished attic area 390 sqft
  • Basement area 780 sqft
  • Porch area 45 sqft
  • Enclosed porch area 40 sqft
  • Deck area 65 sqft
  • Detached garage area 300 sqft
  • Heating & Cooling
  • Heat type Hot Wtr Radiat
  • Exterior Home Features
  • Exterior walls Vinyl Siding
  • Roof type Gable

Features

  • Kitchen quality: Above Average

Householders and Tenants for 10 Fairlee Rd, Newton MA

Possible residents contact details

Person Name Phone Number Additional Info
David D Todres Age: 91
617-332-****
Residential status:
Homeowner
Job:
Protective Service Occupations
HEWETT GERTRUDE M EST
Helen C Bernfeld
I D Todres Age: 91
617-332-****
I Tod Age: 91
Irene P Sharlin
617-332-****
James H Spencer
Jason A Petrilla Age: 53
Residential status:
Homeowner
Jonathan Todres
617-332-****
Judith Sharlin Age: 72
617-794-****
Residential status:
Homeowner
Job:
Food Preparation and Serving Related Occupations
MACLEAN SOLANGE BINDA
Meghan S Kolodziej Age: 50
Mildred E Spencer
Peter H W Bernfeld
Warren A Hewett
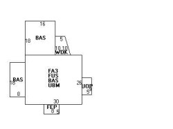
10 Fairlee Rd, Newton MA  02468-2036 plot plan 10 Fairlee Rd, Newton MA  02468-2036 floor plan 10 Fairlee Rd, Newton MA  02468-2036 aerial view

Cost estimate history

YearAssessment
2016 $767,500
2015 $717,300
2014 $684,000
2013 $684,000
2012 $684,000
2011 $674,900
2010 $667,500
2009 $681,100
2008 $681,100
2007 $670,700
2006$651,200
2005$620,200
2004$578,000
2003$516,100
2002$516,100
2001$438,400
2000$400,400
1999$364,300
1998$300,000
1997$300,000
1996$285,700
1995$270,300
1994$257,400
1993$257,400
1992$255,000

Where is 10 Fairlee Rd, Newton MA located on map?

Properties Nearby

Street AddressResidens/Landlords
16 Fairlee Rd, Newton, MA 02468-2036
Single Family
  • 3 beds
  • 2.5 baths
  • 2,593 sqft
  • Built in 1940
Carolyn Swift, BELL GEORGE W II TR
 

FAQ about the house at 10 Fairlee Rd, Newton, MA


NOTICE: You may not use RadioAwards or the information it provides to make decisions about employment, credit, housing or any other purpose that would require Fair Credit Reporting Act (FCRA) compliance. RadioAwards is not a Consumer Reporting Agency (CRA) as defined by the FCRA and does not provide consumer reports.