69 Maynard St, Newton MA  02465-1344 exterior

69 Maynard St Newton, MA 02465 / 1344

Residence for Single Family

(UPDATED: 09/01/2025)
  • 2 Beds
  • 2 Baths
  • 9.170 square feet
Property Report

Information about property on 69 Maynard St, Newton MA, 02465-1344. Find out owner contacts, building history, price, neighborhood at Homemetry Address Directory.

Property Details

The single-family home stands at 69 Maynard Street, Newton, MA.

Facts

  • Built in 1953
  • Property use Single Family
  • Lot size 9,170 sqft
  • Building type Residential
  • Rooms 8
  • Bedrooms 2
  • Stories 1
  • Exterior condition Average
  • Trim Half Wall
  • Foundation type Slab
  • Roof material Asphalt Shingl
  • Fuel type Oil
  • Air conditioning None
  • Frontage 85 feet
  • Heating & Cooling
  • Heat type Hot Water
  • Exterior Home Features
  • Exterior walls Vinyl Siding
  • Roof type Gable

Features

  • Kitchen quality: Above Average

Householders and Tenants for 69 Maynard St, Newton MA

Possible residents contact details

Person Name Phone Number Additional Info
Laurie A Sonia Age: 76
617-244-****
Laurina A Sonia Age: 76
617-244-****
Residential status:
Homeowner
Job:
Professional/Technical
Michael W Sonia Age: 76
617-244-****
Michelle A Sonia Age: 52
617-244-****
Rachel A Sonia Age: 38
617-244-****
Residential status:
Homeowner
Job:
Professional/Technical
Richard D Sonia Age: 76
617-244-****
Residential status:
Homeowner
Job:
Professional/Technical
Stephen Korn
Susan R Korn
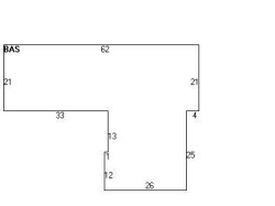
69 Maynard St, Newton MA  02465-1344 plot plan 69 Maynard St, Newton MA  02465-1344 floor plan 69 Maynard St, Newton MA  02465-1344 aerial view

Cost estimate history

YearAssessment
2016 $563,600
2015 $526,700
2014 $497,100
2013 $497,100
2012 $497,100
2011 $492,200
2010 $502,200
2009 $512,400
2008 $512,400
2007 $539,000
2006$523,300
2005$498,400
2004$441,200
2003$393,900
2002$393,900
2001$335,900
2000$306,800
1999$279,200
1998$248,300
1997$234,200
1996$223,000
1995$211,100
1994$207,000
1993$207,000
1992$221,800

Where is 69 Maynard St, Newton MA located on map?

Market Activities

To date, we have no information about market activities in 2025
Jul 2016 Sold
69 Maynard St
Price history :
  • Single-Family Home
  • 1,939 sqft
  • 3 beds
  • 2 baths

View more

Maynard St Incidents registered in FEMA
(Federal Emergency Management Agency)

To date, we have no information about incidents registered in FEMA in 2025
08 Mar 2005 Electrical wiring/equipment problem, other
Property Use —
1 or 2 family dwelling

Properties Nearby

Street Address Residens/Landlords
Solomone A Aisevbonaye
Maryann A Szporluk, Michael A Szporluk
 

FAQ about the house at 69 Maynard St, Newton, MA


NOTICE: You may not use RadioAwards or the information it provides to make decisions about employment, credit, housing or any other purpose that would require Fair Credit Reporting Act (FCRA) compliance. RadioAwards is not a Consumer Reporting Agency (CRA) as defined by the FCRA and does not provide consumer reports.