41 Haynes Rd, Newton MA  02459-2716 exterior

41 Haynes Rd Newton, MA 02459 / 2716

Residence for Single Family

(UPDATED: 07/11/2025)
  • 3 Beds
  • 1 Baths
  • 2.772 square feet
Property Report

Information about property on 41 Haynes Rd, Newton MA, 02459-2716. Find out owner contacts, building history, price, neighborhood at Homemetry Address Directory.

Property Details

This is a single-family property, which is situated at 41 Haynes Road, Newton, MA.

Facts

  • Built in 1950
  • Property use Single Family
  • Lot size 7,910 sqft
  • Effective area 2,772 sqft
  • Building type Residential
  • Rooms 7
  • Bedrooms 3
  • Stories 2
  • Exterior condition Average
  • Trim Full Wall
  • Foundation type Concrete
  • Roof material Asphalt Shingl
  • Fuel type Oil
  • Air conditioning Central
  • Frontage 70 feet
  • Basement area 924 sqft
  • Finished basement area 300 sqft
  • Enclosed porch area 168 sqft
  • Heating & Cooling
  • Heat type Hot Wtr Radiat
  • Exterior Home Features
  • Exterior walls Wood Shingle
  • Roof type Gable

Features

  • Kitchen quality: Below Average

Householders and Tenants for 41 Haynes Rd, Newton MA

Possible residents contact details

Person Name Phone Number Additional Info
David A Winer
617-527-****
Residential status:
Homeowner
Katherine E Winer Age: 69
617-527-****
Residential status:
Homeowner
Job:
Medical Professional
Katherinne Winer
617-527-****
Kathryn E Winer Age: 69
617-527-****
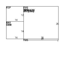
41 Haynes Rd, Newton MA  02459-2716 plot plan 41 Haynes Rd, Newton MA  02459-2716 floor plan 41 Haynes Rd, Newton MA  02459-2716 aerial view

Cost estimate history

YearAssessment
2016 $617,100
2015 $576,700
2014 $551,300
2013 $551,300
2012 $551,300
2011 $553,800
2010 $565,100
2009 $576,600
2008 $576,600
2007 $597,700
2006$580,300
2005$552,700
2004$515,900
2003$460,600
2002$460,600
2001$392,400
2000$358,400
1999$326,100
1998$313,400
1997$295,700
1996$281,600
1995$260,600
1994$253,000
1993$253,000
1992$255,500

Where is 41 Haynes Rd, Newton MA located on map?

Properties Nearby

Street Address Residens/Landlords
Jacinta J Deasis
25 Haynes Rd, Newton, MA 02459-2716
Single Family
  • 3 beds
  • 2.5 baths
  • 3,864 sqft
  • Built in 1954
Michael E Degeorge, Linda R Goldman
26 Haynes Rd, Newton, MA 02459-2715
Single Family
  • 3 beds
  • 2 baths
  • 3,263 sqft
  • Built in 1948
Keren Wolf, Oren Wolf
30 Haynes Rd, Newton, MA 02459-2715
Single Family
  • 3 beds
  • 2.5 baths
  • 3,464 sqft
  • Built in 1950
Svetlozar A Natov, Alexandra P Natova
 

FAQ about the house at 41 Haynes Rd, Newton, MA


NOTICE: You may not use RadioAwards or the information it provides to make decisions about employment, credit, housing or any other purpose that would require Fair Credit Reporting Act (FCRA) compliance. RadioAwards is not a Consumer Reporting Agency (CRA) as defined by the FCRA and does not provide consumer reports.