3 Regina Rd, Newton MA  02466-1412 exterior

3 Regina Rd Newton, MA 02466 / 1412

Residence for Single Family

(UPDATED: 08/02/2025)
  • 3 Beds
  • 2 Baths
  • 2.106 square feet
Property Report

Information about property on 3 Regina Rd, Newton MA, 02466-1412. Find out owner contacts, building history, price, neighborhood at Homemetry Address Directory.

Property Details

As is shown in our records this property stands at 3 Regina Road, Newton, MA.

Facts

  • Built in 1960
  • Property use Single Family
  • Lot size 5,052 sqft
  • Effective area 1,812 sqft
  • Gross building area 2,106 sqft
  • Building type Residential
  • Rooms 6
  • Bedrooms 3
  • Stories 2
  • Exterior condition Average
  • Trim None
  • Foundation type Concrete
  • Roof material Asphalt Shingl
  • Fuel type Oil
  • Air conditioning Unit/AC
  • Frontage 110 feet
  • Basement area 589 sqft
  • Finished basement area 295 sqft
  • Attached garage area 288 sqft
  • Heating & Cooling
  • Heat type Hot Water
  • Exterior Home Features
  • Exterior walls Vinyl Siding
  • Roof type Gable

Householders and Tenants for 3 Regina Rd, Newton MA

Possible residents contact details

Person Name Phone Number Additional Info
Chin H Kwong
Donna T Kwong Age: 47
617-513-****
Residential status:
Homeowner
Job:
Food Preparation and Serving Related Occupations
Eva Kwong
617-527-****
KWONG CHIN HUNG
KWONG LIVING TRUST
KWONG MIU LING
Miu L Kwong Age: 77
617-513-****
Residential status:
Homeowner
Job:
Food Preparation and Serving Related Occupations
Miuling L Kwong Age: 77
617-527-****
N Kwong Age: 47
Patrick C Kwong Age: 79
617-332-****
Residential status:
Homeowner
Terri T Kwong Age: 48
617-513-****
Residential status:
Homeowner
Job:
Food Preparation and Serving Related Occupations
Tsu Momma
Wing Y Kwong
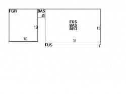
3 Regina Rd, Newton MA  02466-1412 plot plan 3 Regina Rd, Newton MA  02466-1412 floor plan 3 Regina Rd, Newton MA  02466-1412 aerial view

Cost estimate history

YearAssessment
2016 $473,900
2015 $442,900
2014 $422,500
2013 $422,500
2012 $422,500
2011 $418,400
2010 $426,900
2009 $435,600
2008 $435,600
2007 $460,600
2006$447,200
2005$425,900
2004$391,000
2003$349,100
2002$349,100
2001$285,400
2000$260,600
1999$237,100
1998$226,300
1997$226,300
1996$215,500
1995$209,200
1994$205,100
1993$205,100
1992$208,300

Where is 3 Regina Rd, Newton MA located on map?

Properties Nearby

Street Address Residens/Landlords
Dorothy E Boughan, Edward Boughan
 

FAQ about the house at 3 Regina Rd, Newton, MA


NOTICE: You may not use RadioAwards or the information it provides to make decisions about employment, credit, housing or any other purpose that would require Fair Credit Reporting Act (FCRA) compliance. RadioAwards is not a Consumer Reporting Agency (CRA) as defined by the FCRA and does not provide consumer reports.