Cost estimate history
| Year | Assessment | ||
|---|---|---|---|
| 2016 | $620,900 | ||
| 2015 | $580,300 | ||
| 2014 | $555,800 | ||
| 2013 | $555,800 | ||
| 2012 | $555,800 | ||
| 2011 | $568,400 | ||
| 2010 | $580,000 | ||
| 2009 | $591,800 | ||
| 2008 | $591,800 | ||
| 2007 | $588,100 | ||
| 2006 | $571,000 | ||
| 2005 | $543,800 | ||
| 2004 | $492,400 | ||
| 2003 | $439,600 | ||
| 2002 | $439,600 | ||
| 2001 | $375,600 | ||
| 2000 | $343,000 | ||
| 1999 | $312,100 | ||
| 1998 | $288,200 | ||
| 1997 | $273,200 | ||
| 1996 | $260,200 | ||
| 1995 | $243,500 | ||
| 1994 | $231,900 | ||
| 1993 | $231,900 | ||
| 1992 | $241,100 |
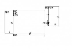
Building Permits
To date, we have no information about building permits in 2025
Sep 17, 2015
Description: Remove and replace all roof coverings
- Valuation: $1,200,000
- Fee: $240.00 paid to City of Newton, Massachusetts
- Parcel #: 33028 0001
- Permit #: 15090614
Lindbergh Ave Fire Incident History
To date, we have no information about fire incidents in 2025
10 Apr 2004
Brush, or brush and grass mixture fire
Property Use —
Parking garage, (detached residential garage)
Area of Origin —
Outside area, other
First Ignition —
Light vegetation - not crop, including grass
Heat Source —
Spark, ember or flame from operating equipment
Properties Nearby
| Street Address | Residens/Landlords | |
|---|---|---|
10 Lindbergh Ave, Newton, MA 02465-1635 Single Family
|
Margaret Ford, Thomas H Boyd | |
15 Lindbergh Ave, Newton, MA 02465-1634 Single Family
|
Lisa L Dagostino, Jeffrey D Dagostino | |
16 Lindbergh Ave, Newton, MA 02465-1635 Single Family
|
Eric S Iida, Marguerite A Hawley | |
24 Lindbergh Ave, Newton, MA 02465-1635 Single Family
|
Anthony G Odriscoll, Nancy S Odriscoll | |
26 Lindbergh Ave, Newton, MA 02465-1651 Single Family
|
Sheila M Dalleva, David D Dalleva | |
30 Lindbergh Ave, Newton, MA 02465-1651 Single Family
|
Cynthia A Starr, David J Danek | |
35 Lindbergh Ave, Newton, MA 02465-1634 Single Family
|
Adam E Shyevitch, Nicole D Lamberg | |
38 Lindbergh Ave, Newton, MA 02465-1651 Single Family
|
Pasquale S Venditti, Ida Venditti | |
41 Lindbergh Ave, Newton, MA 02465-1634 Single Family
|
Gregory D Morin, Erica D Morin | |
42 Lindbergh Ave, Newton, MA 02465-1651 Single Family
|
Catherine S Mahoney, James F Mahoney |


