15 Antonellis Cir, Newton MA  02459-3707 exterior

15 Antonellis Cir Newton, MA 02459 / 3707

Residence for Single Family

(UPDATED: 07/17/2025)
  • 3 Beds
  • 2 Baths
  • 1.818 square feet
Property Report

Information about property on 15 Antonellis Cir, Newton MA, 02459-3707. Find out owner contacts, building history, price, neighborhood at Homemetry Address Directory.

Property Details

At 15 Antonellis Cir, Newton, MA based a single-family residence.

Facts

  • Built in 1949
  • Property use Single Family
  • Lot size 13,026 sqft
  • Effective area 1,818 sqft
  • Building type Residential
  • Rooms 5
  • Bedrooms 3
  • Bathrooms 2
  • Exterior condition Average
  • Trim None
  • Foundation type Slab
  • Roof material Asphalt Shingl
  • Fuel type Gas
  • Frontage 50 feet
  • Enclosed porch area 120 sqft
  • Detached garage area 594 sqft
  • Heating & Cooling
  • Heat type Hot Wtr Radiat
  • Exterior Home Features
  • Exterior walls Wood Shingle
  • Roof type Gable

Householders and Tenants for 15 Antonellis Cir, Newton MA

Possible residents contact details

Person Name Phone Number Additional Info
Arline L Saxe
BIGONY DONNA LOMP
CHANG CHING HAW &AL
CHANG CHING HAW &UX
CHANG HUI CHUAN &AL
CHANG HUI CHUON &AL
Colten S Bigonet Age: 28
Donna L Bigony Age: 67
617-558-****
Residential status:
Homeowner
Job:
Service Occupations
Donna L Lomp Age: 67
617-558-****
Residential status:
Homeowner
George Francis Murphy Age: 84
617-471-****
Glenn F Bigony Age: 63
617-558-****
Residential status:
Homeowner
Job:
Service Occupations
Harvey Saxe
Jeffrey S Gassman
M Louise Bell
Miriam S Gassman
Nancy M Murphy
Paul P Murphy
Peter A Johnson Age: 65
Residential status:
Homeowner
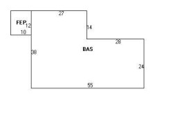
15 Antonellis Cir, Newton MA  02459-3707 plot plan 15 Antonellis Cir, Newton MA  02459-3707 floor plan 15 Antonellis Cir, Newton MA  02459-3707 aerial view

Purchase History

DateEventPriceSourceAgents
08/31/1998 Sold $337,000 Public records
10/17/1994 Sold $237,000 Public records

Cost estimate history

YearAssessment
2016 $495,700
2015 $463,300
2014 $440,000
2013 $440,000
2012 $440,000
2011 $437,300
2010 $446,200
2009 $455,300
2008 $455,300
2007 $520,600
2006$505,400
2005$481,300
2004$403,800
2003$360,500
2002$360,500
2001$326,500
2000$298,200
1999$271,300
1998$238,100
1997$218,400
1996$218,400
1995$192,700
1994$185,300
1993$183,500
1992$203,600

Where is 15 Antonellis Cir, Newton MA located on map?

Properties Nearby

Street AddressResidens/Landlords
4 Antonellis Cir, Newton, MA 02459-3724
Single Family
  • 4 beds
  • 2 baths
  • 3,304 sqft
  • Built in 1945
Francisco Chamu, Francisco Chamu-Morales
5 Antonellis Cir, Newton, MA 02459-3707
Single Family
  • 4 beds
  • 2.5 baths
  • Lot: 7,414 sqft
  • Built in 1948
5 ANTONELLIS CIRCLE REALTY TRUST /S TR, Bonnie Tr Blasikiewicz
 

FAQ about the house at 15 Antonellis Cir, Newton, MA


NOTICE: You may not use RadioAwards or the information it provides to make decisions about employment, credit, housing or any other purpose that would require Fair Credit Reporting Act (FCRA) compliance. RadioAwards is not a Consumer Reporting Agency (CRA) as defined by the FCRA and does not provide consumer reports.