Sold Jun 2022
$495,000
$495,000
Market Activities
To date, we have no information about market activities in 2025
Jun 2022
Sold
Feb 2022
Sold
PUBLIC RECORDS for 19332 Asbury Dr, Aurora CO
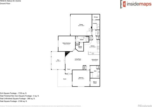
Facts
Built in 2007Foundation: ConcreteConstruction: FrameRoof type: AsphaltBedrooms: 2Heat type: Forced air unitExterior material: StoneParking: Attached GarageExterior walls: Brick
Features
Fireplace
Listing info
Last sold: Jan 2008 for $240,912
Other details
Units: 1
Resident History for 19332 Asbury Dr, Aurora CO
All residents for 19332 Asbury Dr Unit C
Sales history
| Date | Event | Price | Source | Agents |
|---|---|---|---|---|
| 01/04/2008 | Sold | $240,912 |
Public records
|
Assessment history
| Year | Tax | Assessment | Market |
|---|---|---|---|
| 2013 | $2,267 | $20,900 | $246,800 |
