8834 Mexico Ave Denver, CO 80232 / 6558

Residence for Single Family

(UPDATED: 07/14/2025)
  • 3 Beds
  • 1 Baths
  • 8.915 square feet
Sold Nov 2022
$537,000
Property Report

Information about property on 8834 Mexico Ave, Denver CO, 80232-6558. Find out owner contacts, building history, price, neighborhood at Homemetry Address Directory.

Property Details

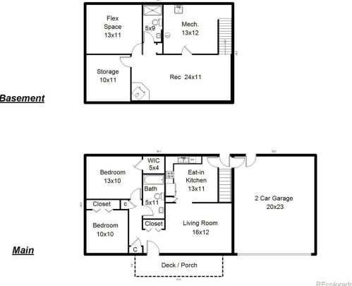
At 8834 Mexico Avenue, Denver, CO stands a single-family ranch.

Facts

  • Built in 1967
  • Lot size 8,915 sqft
  • Construction Other
  • Bedrooms 3
  • Style Ranch/Rambler
  • Basement Partial Basement
  • Heating & Cooling
  • Heat type Wood Burning
  • Parking & Garage
  • Parking Attached Garage
  • Parking spaces 2

Misc

  • Units 1

Householders and Tenants for 8834 Mexico Ave, Denver CO

Possible residents contact details

Person Name Phone Number Additional Info
Arlene Diel
303-985-****
Arlene F Buehler
303-985-****
Darwin D Seehase Age: 60
Residential status:
Homeowner
Glenn F Diel Age: 101
J J Buehler
303-985-****
Residential status:
Homeowner

Cost estimate history

YearTaxAssessmentMarket
2014 $733 $15,116 N/A
2013 N/A N/A $189,900

Where is 8834 Mexico Ave, Denver CO located on map?

Market Activities

To date, we have no information about market activities in 2025
Nov 2022 Sold
8834 Mexico Ave
Price history :
  • Single Family
  • 1,800 sqft
  • 3 beds
  • 2 baths
Jun 2022 Sold
8834 Mexico Ave
Price history :
  • Single Family
  • 1,800 sqft
  • 3 beds
  • 2 baths

View more

Mexico Ave Fire Incident History

To date, we have no information about fire incidents in 2025
05 Aug 2019 Special outside fire, other
Property Use —
Outside or special property, other
Area of Origin —
Courtyard, patio, porch, terrace
27 Oct 2017 Passenger vehicle fire
Property Use —
Open land or field
05 Mar 2017 Building fires
Property Use —
1 or 2 family dwelling
Area of Origin —
Cooking area, kitchen
First Ignition —
Appliance housing or casing
Heat Source —
Heat source: other
10 Oct 2016 Brush, or brush and grass mixture fire
Property Use —
1 or 2 family dwelling

View more

Mexico Ave Incidents registered in FEMA
(Federal Emergency Management Agency)

To date, we have no information about incidents registered in FEMA in 2025
15 Nov 2015 Outside stationary compactor/compacted trash fire
Property Use —
Textile, wearing apparel sales
14 Nov 2015 Carbon monoxide incident
Property Use —
1 or 2 family dwelling
04 Oct 2015 Dumpster or other outside trash receptacle fire
Property Use —
Outside or special property, other
15 Aug 2015 Cooking fire, confined to container
Property Use —
Multifamily dwellings

View more

Properties Nearby

Street AddressResidens/Landlords
8600 Mexico Ave, Denver, CO 80232-6638
Single Family Residential
  • 4 beds
  • 1 bath
  • 1,700 sqft
  • Built in 1966
Amanda L Crow, Gregory A Linnert
8691 Mexico Ave, Denver, CO 80232-6637
Single Family Residential
  • 4 beds
  • 1 bath
  • Lot: 8,379 sqft
  • Built in 1964
Carl W Dodson, Linda K Dodson
8731 Mexico Ave, Denver, CO 80232-6639
Single Family Residential
  • 3 beds
  • 1 bath
  • Lot: 7,769 sqft
  • Built in 1964
Albert H Burchard, Gloria M Burchard
8780 Mexico Ave, Denver, CO 80232-6662
Single Family Residential
  • 3 beds
  • 1 bath
  • Lot: 8,005 sqft
  • Built in 1966
Bill R Fuson, Robert Fuson
8833 Mexico Ave, Denver, CO 80232-6570
Single Family Residential
  • 3 beds
  • 1 bath
  • Lot: 8,914 sqft
  • Built in 1967
Lindsey N Dugan, Mark A Dugan
8923 Mexico Ave, Denver, CO 80232-6552
Single Family Residential
  • 4 beds
  • 1 bath
  • Lot: 9,151 sqft
  • Built in 1965
Lori K Allen, Heather N Thode
8924 Mexico Ave, Denver, CO 80232-6553
Single Family Residential
  • 3 beds
  • 1 bath
  • Lot: 10,005 sqft
  • Built in 1967
Janice R Howie, Pamela K Howie
8943 Mexico Ave, Denver, CO 80232-6564
Single Family Residential
  • 3 beds
  • 1 bath
  • Lot: 9,236 sqft
  • Built in 1966
Paul A Cerrone, Georgiann Ehrlich
8983 Mexico Ave, Denver, CO 80232-6564
Single Family Residential
  • 3 beds
  • 1 bath
  • 1,716 sqft
  • Built in 1967
Pamela D Alten, David Appel
9033 Mexico Ave, Denver, CO 80232-6554
Single Family Residential
  • 3 beds
  • 1 bath
  • Lot: 8,663 sqft
  • Built in 1967
Chris C Archuleta, Julio C Archuleta
 

FAQ about the house at 8834 Mexico Ave, Denver, CO


NOTICE: You may not use RadioAwards or the information it provides to make decisions about employment, credit, housing or any other purpose that would require Fair Credit Reporting Act (FCRA) compliance. RadioAwards is not a Consumer Reporting Agency (CRA) as defined by the FCRA and does not provide consumer reports.