7037 Waters Edge Dr Stone Mountain, GA 30087 / 5431

Residence for Single Family

(UPDATED: 08/06/2025)
  • 4 Beds
  • 2 Baths
  • 0.26 acres
Sold May 2023
$394,000
Property Report

Information about property on 7037 Waters Edge Dr, Stone Mountain GA, 30087-5431. Find out owner contacts, building history, price, neighborhood at Homemetry Address Directory.

Property Details

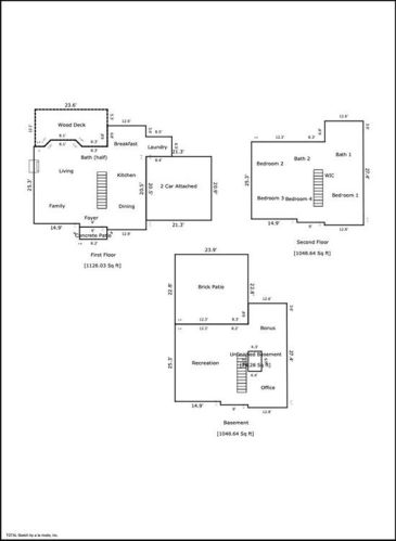
Originally built in the nineties, the property has a wood facade and garage on near one fourth of acre lot.

Facts

  • Built in 1990
  • Lot size 0,26 acres
  • Construction Frame
  • Bedrooms 4
  • Bathrooms 2
  • Stories 2 story
  • Foundation Concrete
  • Heating & Cooling
  • Heat type Central
  • Exterior Home Features
  • Exterior walls Wood
  • Parking & Garage
  • Parking Garage

Listing info

  • Last sold Jan 1991 for $129,900

Features

  • Fireplace
  • Construction quality: 7.0

Householders and Tenants for 7037 Waters Edge Dr, Stone Mountain GA

Possible residents contact details

Person Name Phone Number Additional Info
Arthur G Pinney
770-879-****
Elizabeth T Pinney Age: 87
770-879-****
Robert A Pinney
770-879-****
Residential status:
Homeowner
Job:
Protective Service Occupations

Cost estimate history

YearTaxAssessmentMarket
2014 $1,523 N/A N/A
2013 N/A $46,800 $117,000

Where is 7037 Waters Edge Dr, Stone Mountain GA located on map?

Market Activities

To date, we have no information about market activities in 2025
May 2023 Sold
7037 Waters Edge Dr
Price history :
  • Single Family
  • 2,175 sqft
  • 4 beds
  • 3 baths
Mar 2023 Sold
7037 Waters Edge Dr
Price history :
  • Single Family
  • 2,175 sqft
  • 4 beds
  • 3 baths

View more

Waters Edge Dr Fire Incident History

To date, we have no information about fire incidents in 2025
28 May 2009 Building fires
Property Use —
1 or 2 family dwelling
Area of Origin —
Closet
17 Jul 2003 Building fires
Property Use —
1 or 2 family dwelling
Area of Origin —
Vehicle storage area; garage, carport

Waters Edge Dr Incidents registered in FEMA
(Federal Emergency Management Agency)

To date, we have no information about incidents registered in FEMA in 2025
22 Dec 2014 Chimney or flue fire, confined to chimney or flue
Property Use —
1 or 2 family dwelling
14 Oct 2014 Unauthorized burning
Property Use —
1 or 2 family dwelling
09 Sep 2013 Gas leak (natural gas or LPG)
Property Use —
1 or 2 family dwelling
31 Jul 2013 Arcing, shorted electrical equipment
Property Use —
1 or 2 family dwelling

View more

Properties Nearby

Street AddressResidens/Landlords
6999 Waters Edge Dr, Stone Mountain, GA 30087-5455
Single Family Residential
  • 3 beds
  • 2 baths
  • Lot: 10,019 sqft
  • Built in 1993
G. MCCORD TRUCKING COMPANY, LLC, Hollis A Bishop
7005 Waters Edge Dr, Stone Mountain, GA 30087-5431
Single Family Residential
  • 3 beds
  • 2 baths
  • Lot: 10,454 sqft
  • Built in 1993
Tameya Allen, Clynithia E Beas
7013 Waters Edge Dr, Stone Mountain, GA 30087-5431
Single Family Residential
  • 3 beds
  • 2 baths
  • 2,259 sqft
  • Built in 1993
Philip M Faxio, Christopher King
7021 Waters Edge Dr, Stone Mountain, GA 30087-5431
Single Family Residential
  • 4 beds
  • 2 baths
  • Lot: 10,454 sqft
  • Built in 1989
DOSH ENTERPRISE, LLC, Gwendolyn W Baker
7031 Waters Edge Dr, Stone Mountain, GA 30087-5431
Single Family Residential
  • 4 beds
  • 2 baths
  • Lot: 9,148 sqft
  • Built in 1989
Geron L Moore LLC, Allen Moore
7042 Waters Edge Dr, Stone Mountain, GA 30087-5432
Single Family Residential
  • 3 beds
  • 2 baths
  • Lot: 8,712 sqft
  • Built in 1990
Janet L Brandveen, Janet L Davis
7053 Waters Edge Dr, Stone Mountain, GA 30087-5433
Single Family Residential
  • 3 beds
  • 2 baths
  • Lot: 0.26 acres
  • Built in 1989
Donna E Wynn, Todd A Wynn
7059 Waters Edge Dr, Stone Mountain, GA 30087-5433
Single Family Residential
  • 3 beds
  • 3 baths
  • Lot: 0.27 acres
  • Built in 1989
Alex Brown, Michael G Butts
7062 Waters Edge Dr, Stone Mountain, GA 30087-5432
Single Family Residential
  • 3 beds
  • 2 baths
  • Lot: 9,148 sqft
  • Built in 1990
AXIS DEVELOPMENT GROUP, LLC, BROOKLYN VENTURES, LLC
7066 Waters Edge Dr, Stone Mountain, GA 30087-5432
Single Family Residential
  • 3 beds
  • 2 baths
  • Lot: 0.25 acres
  • Built in 1989
JDP ASSOCIATES, INC, Cynthia A Duncanson
 

FAQ about the house at 7037 Waters Edge Dr, Stone Mountain, GA


NOTICE: You may not use RadioAwards or the information it provides to make decisions about employment, credit, housing or any other purpose that would require Fair Credit Reporting Act (FCRA) compliance. RadioAwards is not a Consumer Reporting Agency (CRA) as defined by the FCRA and does not provide consumer reports.