520 Reynolds Ave Columbus, OH 43201 / 3616

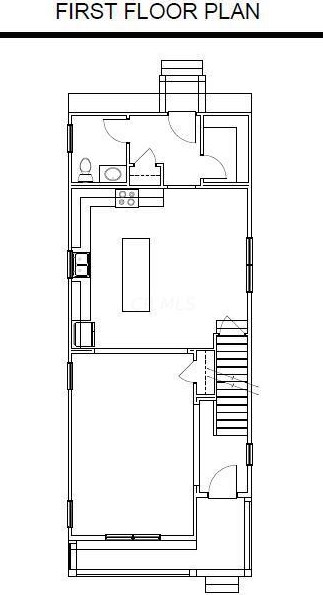
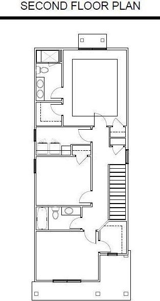
  • 3 Beds
  • 3 Baths
  • 1.819 square feet
Sold Apr 2021
$474,900
Property Report

Information about property on 520 Reynolds Ave, Columbus OH, 43201-3616. Find out owner contacts, building history, price, neighborhood at Homemetry Address Directory.

Property Details

A possession at 520 Reynolds Avenue, Columbus, OH.

Where is 520 Reynolds Ave, Columbus OH located on map?

Market Activities

To date, we have no information about market activities in 2025
Apr 2021 Sold
520 Reynolds Ave
Price history :
  • Single Family
  • 1,819 sqft
  • 3 beds
  • 3 baths
Apr 2021 Sold
520 Reynolds Ave
Price history :
  • Single Family
  • 1,819 sqft
  • 3 beds
  • 3 baths

View more

Reynolds Ave Fire Incident History

To date, we have no information about fire incidents in 2025
19 Mar 2017 Passenger vehicle fire
Property Use —
Vehicle parking area
Area of Origin —
Engine area, running gear, wheel area
23 Apr 2013 Passenger vehicle fire
Property Use —
Graded and cared-for plots of land
Area of Origin —
Operator/passenger area of transportation equip.
01 May 2012 Passenger vehicle fire
Property Use —
Residential street, road or residential driveway
03 Sep 2011 Building fires
Property Use —
1 or 2 family dwelling

View more

Reynolds Ave Incidents registered in FEMA
(Federal Emergency Management Agency)

To date, we have no information about incidents registered in FEMA in 2025
12 Oct 2015 Arcing, shorted electrical equipment
Property Use —
Multifamily dwellings
07 Sep 2015 Electrical wiring/equipment problem, other
Property Use —
Street, other
28 Dec 2013 Gas leak (natural gas or LPG)
Property Use —
1 or 2 family dwelling
21 May 2012 Attempt to burn
Property Use —
1 or 2 family dwelling

View more

Properties Nearby

Street AddressResidens/Landlords
Damaji Jambhale
Barbara Albanese, Emily Linn Anthony
496 Reynolds Ave, Columbus, OH 43201-3616
  • 4 beds
  • 4 baths
  • Lot: 2,517 sqft
500 Reynolds Ave, Columbus, OH 43201-3617
  • 4 beds
  • 2 baths
  • Lot: 1,904 sqft
Marcella M Allen, Rhoda E Allen
David Gladieux
584 Reynolds Ave, Columbus, OH 43201-3739
  • 6 beds
  • 2 baths
  • Lot: 1,664 sqft
Chrystal M Brown, Myrtle Bump
243 Limited Partnership An Ohio Limited, Atlas Butler Heating & Cooling
Vernon L Hagans
Johnson Welding, Pro Repair
788 Reynolds Ave, Columbus, OH 43201-3767
Single Family
  • 2 beds
  • 1 bath
  • 1,051 sqft
  • Built in 1925
Jeremy Allsup, Mike Badurina
 

FAQ about the house at 520 Reynolds Ave, Columbus, OH


NOTICE: You may not use RadioAwards or the information it provides to make decisions about employment, credit, housing or any other purpose that would require Fair Credit Reporting Act (FCRA) compliance. RadioAwards is not a Consumer Reporting Agency (CRA) as defined by the FCRA and does not provide consumer reports.