4518 142nd St Saint Paul, MN 55124 / 7713

Residence for Single Family

(UPDATED: 09/02/2025)
  • 3 Beds
  • 2 Baths
  • 0.35 acres
Sold Jul 2021
$341,200
Property Report

Information about property on 4518 142nd St, Saint Paul MN, 55124-7713. Find out owner contacts, building history, price, neighborhood at Homemetry Address Directory.

Property Details

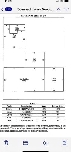
Facts

  • Built in 1978
  • Lot size 0,35 acres
  • Building 1
  • Construction Wood
  • Bedrooms 3
  • Parking & Garage
  • Parking Garage
  • Parking spaces 2

Householders and Tenants for 4518 142nd St, Saint Paul MN

Possible residents contact details

Person Name Phone Number Additional Info
Cathy A Jensen Age: 66
952-322-****
Gary John Jeppesen
651-322-****
Michael C Jensen Age: 65
651-322-****
Residential status:
Homeowner
Job:
Production Occupations
S Dunkle
651-322-****
Steven Frias
Todd Jensen
952-322-****

Cost estimate history

YearTaxAssessmentMarket
2014 $2,320 N/A N/A
2013 N/A $160,595 $181,500

Where is 4518 142nd St, Saint Paul MN located on map?

Market Activities

To date, we have no information about market activities in 2025
Jul 2021 Sold
4518 142nd St
Price history :
  • Single Family
  • 3 beds
  • 2 baths
Jun 2021 Listed for sale
4518 142nd St
Price history :
  • Single Family
  • 1,758 sqft
  • 3 beds
  • 2 baths
Mar 2021 Sold
4518 142nd St
Price history :
  • Single Family
  • 3 beds
  • 2 baths

View more

142nd St Fire Incident History

To date, we have no information about fire incidents in 2025
01 Nov 2019 Fire in portable building, fixed location
Property Use —
Vehicle parking area
Area of Origin —
Outside area, other
First Ignition —
Rubbish, trash, or waste
Heat Source —
Heat from other open flame or smoking materials
27 Jan 2018 Building fires
Property Use —
1 or 2 family dwelling
Area of Origin —
Cooking area, kitchen
First Ignition —
Appliance housing or casing
Heat Source —
Heat from powered equipment, other
08 Aug 2017 Passenger vehicle fire
Property Use —
1 or 2 family dwelling
Area of Origin —
Operator/passenger area of transportation equip.
Heat Source —
Heat from powered equipment, other
02 Dec 2010 Building fires
Property Use —
1 or 2 family dwelling
Area of Origin —
Common room, den, family room, living room, lounge
First Ignition —
Magazine, newspaper, writing paper
Heat Source —
Cigarette lighter

View more

142 St Incidents registered in FEMA
(Federal Emergency Management Agency)

To date, we have no information about incidents registered in FEMA in 2025
26 Jul 2007 Heat from short circuit (wiring), defective/worn
Property Use —
1 or 2 family dwelling
10 Dec 2003 Alarm system sounded, no fire - unintentional
Property Use —
Multifamily dwellings
01 Dec 2003 Medical assist, assist EMS crew
Property Use —
Multifamily dwellings
06 May 2002 Smoke detector activation due to malfunction
Property Use —
Day care, in commercial property

View more

Properties Nearby

Street Address Residens/Landlords
4515 142nd St, Saint Paul, MN 55124-7740
Single Family Residential
  • 4 beds
  • 2 baths
  • Lot: 0.57 acres
  • Built in 1978
Clare M Auger, Janet Helland
4537 142nd St, Saint Paul, MN 55124-7740
Single Family Residential
  • 4 beds
  • 3 baths
  • Lot: 0.41 acres
  • Built in 1978
Master Sealcoating, Joseph T Plan
4540 142nd St, Saint Paul, MN 55124-7713
Single Family Residential
  • 3 beds
  • 2 baths
  • Lot: 0.26 acres
  • Built in 1978
Ryan M Naddy, Debra Swenson
4556 142nd St, Saint Paul, MN 55124-7713
Single Family Residential
  • 4 beds
  • 2 baths
  • Lot: 0.26 acres
  • Built in 1978
Kyle Christensen, Ralph D Michels
4567 142nd St, Saint Paul, MN 55124-7740
Single Family Residential
  • 4 beds
  • 2 baths
  • Lot: 0.33 acres
  • Built in 1978
Evelyn Sue Butcher, Michael Carpenter
4570 142nd St, Saint Paul, MN 55124-7713
Single Family Residential
  • 3 beds
  • 2 baths
  • Lot: 0.31 acres
  • Built in 1978
Allen L Andrzejewski, Daniel A Andrzejewski
4596 142nd St, Saint Paul, MN 55124-7780
Single Family Residential
  • 3 beds
  • 2 baths
  • Lot: 0.31 acres
  • Built in 1978
Modern Landscapes, Danielle A Bedor
4616 142nd St, Saint Paul, MN 55124-7714
Single Family Residential
  • 4 beds
  • 2 baths
  • Lot: 0.32 acres
  • Built in 1978
Leah M Fristedt, Andrea T Helland
4619 142nd St, Saint Paul, MN 55124-7716
Single Family Residential
  • 4 beds
  • 3 baths
  • Lot: 0.3 acres
  • Built in 1978
New Challenges Inc, Leean Metzmaker
4626 142nd St, Saint Paul, MN 55124-7714
Single Family Residential
  • 3 beds
  • 1 bath
  • Lot: 0.33 acres
  • Built in 1978
Janice L Flom, Jeffrey L Flom
 

FAQ about the house at 4518 142nd St, Saint Paul, MN


NOTICE: You may not use RadioAwards or the information it provides to make decisions about employment, credit, housing or any other purpose that would require Fair Credit Reporting Act (FCRA) compliance. RadioAwards is not a Consumer Reporting Agency (CRA) as defined by the FCRA and does not provide consumer reports.