446 Flint Trl Carol Stream, IL 60188 / 1444

Residence for Single Family

(UPDATED: 08/08/2025)
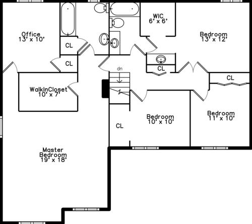
  • 4 Beds
  • 2 Baths
  • 7.480 square feet
Sold Feb 2022
$350,000
Property Report

Information about property on 446 Flint Trl, Carol Stream IL, 60188-1444. Find out owner contacts, building history, price, neighborhood at Homemetry Address Directory.

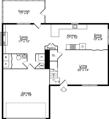
Property Details

The single-family possession is situated at the end of the street at 446 Flint Trl, Carol Stream, Illinois.

Facts

  • Built in 1980
  • Lot size 7,480 sqft
  • Construction Mixed
  • Rooms 6
  • Bedrooms 4
  • Stories 2 story
  • Structure type Other
  • Heating & Cooling
  • Cooling Central
  • Parking & Garage
  • Parking Attached Garage
  • Parking spaces 2

Listing info

  • Last sold Sep 1998 for $150,000

Features

  • Fireplace
  • A/C

Purchase History

DateEventPriceSourceAgents
09/14/1998 Sold $150,000 Public records

Cost estimate history

YearTaxAssessmentMarket
2012 $5,863 $81,130 N/A

Where is 446 Flint Trl, Carol Stream IL located on map?

Market Activities

To date, we have no information about market activities in 2025
Feb 2022 Sold
446 Flint Trl
Price history :
  • Single Family
  • 2,400 sqft
  • 4 beds
  • 3 baths
Jul 2021 Sold
446 Flint Trl
Price history :
  • Single Family
  • 2,400 sqft
  • 4 beds
  • 3 baths

View more

Flint Trl Fire Incident History

To date, we have no information about fire incidents in 2025
23 May 2010 Outside equipment fire
Property Use —
1 or 2 family dwelling
Area of Origin —
Outside area, other
First Ignition —
Cooking materials, including edible materials
Heat Source —
Heat source: other
24 Apr 2002 Natural vegetation fire, other
Property Use —
1 or 2 family dwelling

Flint Trl Incidents registered in FEMA
(Federal Emergency Management Agency)

To date, we have no information about incidents registered in FEMA in 2025
29 Apr 2007 Fire, other
Property Use —
1 or 2 family dwelling
06 Jan 2005 Carbon monoxide incident
Property Use —
1 or 2 family dwelling
31 Aug 2004 Hazardous condition, other
Property Use —
1 or 2 family dwelling
20 Dec 2003 Emergency medical service, other (conversion only)
Property Use —
1 or 2 family dwelling

View more

Properties Nearby

Street AddressResidens/Landlords
408 Flint Trl, Carol Stream, IL 60188-1446
Single Family Residential
  • 3 beds
  • 1 bath
  • Lot: 7,549 sqft
  • Built in 1978
Barbara T Rios, Erwin Rios
444 Flint Trl, Carol Stream, IL 60188-1444
Single Family
  • 3 beds
  • 1.5 baths
  • 1,257 sqft
  • Built in 1979
John B Jr, Bell Jr
447 Flint Trl, Carol Stream, IL 60188-1450
Single Family
  • 3 beds
  • 1 bath
  • Lot: 7,701 sqft
  • Built in 1982
James G Bellavia, Geraldine D Dugo
456 Flint Trl, Carol Stream, IL 60188-1443
Single Family
  • 3 beds
  • 1.5 baths
  • 1,118 sqft
  • Built in 1984
Rosemary Lykins, Sanford Lykins
494 Flint Trl, Carol Stream, IL 60188-1441
Single Family Residential
  • 3 beds
  • 1 bath
  • Lot: 7,223 sqft
  • Built in 1976
Barbara L Coniglio, Christoph Coniglio
507 Flint Trl, Carol Stream, IL 60188-1423
Single Family Residential
  • 4 beds
  • 2 baths
  • Lot: 6,547 sqft
  • Built in 1977
Joseph Defrancesco, Dawn M Falk
516 Flint Trl, Carol Stream, IL 60188-1456
Single Family
  • 3 beds
  • 2.5 baths
  • 1,248 sqft
  • Built in 1976
Hair's to You, Brian R Cripe
528 Flint Trl, Carol Stream, IL 60188-1457
Single Family
  • 3 beds
  • 2 baths
  • Lot: 7,000 sqft
  • Built in 1977
Anna E Skretny, Harold J Skretny
530 Flint Trl, Carol Stream, IL 60188-1457
Single Family Residential
  • 3 beds
  • 2 baths
  • Lot: 6,000 sqft
  • Built in 1978
Glenn A Aranas, Jeffrey A Aranas
532 Flint Trl, Carol Stream, IL 60188-1457
Single Family Residential
  • 3 beds
  • 2 baths
  • Lot: 6,000 sqft
  • Built in 1977
Dia M Colman, Dla Colman
 

FAQ about the house at 446 Flint Trl, Carol Stream, IL


NOTICE: You may not use RadioAwards or the information it provides to make decisions about employment, credit, housing or any other purpose that would require Fair Credit Reporting Act (FCRA) compliance. RadioAwards is not a Consumer Reporting Agency (CRA) as defined by the FCRA and does not provide consumer reports.