Residence for Single Family

(UPDATED: 04/01/2023)
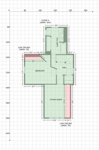
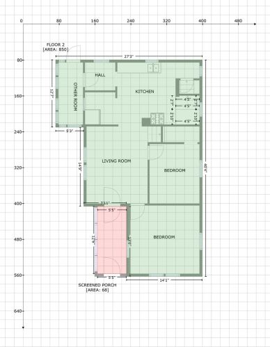
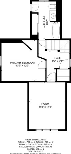
  • 2 Beds
  • 1 Baths
  • 6.280 square feet
For Sale
$199,900
Property Report

Information about property on 3855 6th St, Minneapolis MN, 55412-2102. Find out owner contacts, building history, price, neighborhood at Homemetry Address Directory.

Property Details

The single-family estate is placed at the end of the street at 3855 6th Street, Minneapolis, Minnesota.

Facts

  • Built in 1901
  • Lot size 6,280 sqft
  • Construction Frame
  • Rooms 6
  • Bedrooms 2
  • Stories 2 story with basement
  • Basement Basement (not specified)
  • Heating & Cooling
  • Heat type Forced air unit
  • Exterior Home Features
  • Exterior walls Other
  • Roof type Asphalt
  • Parking & Garage
  • Parking Mixed

Householders and Tenants for 3855 6th St, Minneapolis MN

Possible residents contact details

Person Name Phone Number Additional Info
Arnad Johnson
612-385-****
Arnold Johnson
612-281-****
Residential status:
Homeowner
Job:
Sales Occupations
Edward A Johnson
612-529-****
Residential status:
Homeowner

Cost estimate history

YearTaxAssessmentMarket
2014 $1,051 $84,500 N/A
2013 N/A N/A $84,500

Where is 3855 6th St, Minneapolis MN located on map?

Market Activities

To date, we have no information about market activities in 2025
Apr 2023 Listed for sale
3855 6th St
Price history :
  • Single Family
  • 1,393 sqft
  • 4 beds
  • 1 bath
Mar 2023 Listed for sale
3855 6th St
Price history :
  • Single Family
  • 1,393 sqft
  • 4 beds
  • 1 bath
Jan 2023 Sold
3855 6th St
Price history :
  • Single Family
  • 1,212 sqft
  • 2 beds
  • 2 baths
Nov 2022 Sold
3855 6th St
Price history :
  • Single Family
  • 1,212 sqft
  • 2 beds
  • 2 baths

View more

6th St Fire Incident History

To date, we have no information about fire incidents in 2025
15 Nov 2019 Dumpster or other outside trash receptacle fire
Property Use —
Street or road in commercial area
Area of Origin —
Outside area, other
19 Aug 2019 Passenger vehicle fire
Property Use —
Residential street, road or residential driveway
Area of Origin —
Cargo/trunk area - all vehicles
First Ignition —
Item First Ignited, Other
Heat Source —
Radiated heat from another fire
06 Jul 2019 Building fires
Property Use —
1 or 2 family dwelling
Area of Origin —
Wall surface: exterior
First Ignition —
Rubbish, trash, or waste
27 Jun 2019 Passenger vehicle fire
Property Use —
Residential street, road or residential driveway
Area of Origin —
Engine area, running gear, wheel area
Heat Source —
Radiated, conducted heat from operating equipment

View more

6 St Incidents registered in FEMA
(Federal Emergency Management Agency)

To date, we have no information about incidents registered in FEMA in 2025
18 Jun 2015 Unauthorized burning
Property Use —
1 or 2 family dwelling
10 Oct 2014 Unauthorized burning
Property Use —
1 or 2 family dwelling
29 Jan 2014 Carbon monoxide incident
Property Use —
1 or 2 family dwelling
08 Jan 2014 Cooking fire, confined to container

View more

Properties Nearby

Street AddressResidens/Landlords
316 6th St, Minneapolis, MN 55415-1308
Single Family Residential
  • 2 beds
  • 1 bath
  • Lot: 0.27 acres
  • Built in 1900
Alexander Dekker, Jacqueline Marha Travis
1119 6th St, Minneapolis, MN 55411-4307
Single Family Residential
  • 4 beds
  • 1 bath
  • Lot: 4,847 sqft
  • Built in 1900
Russell J Adkins, Daniel J Bresnahan
2422 6th St, Minneapolis, MN 55411-2127
Single Family Residential
  • 3 beds
  • 1 bath
  • Lot: 6,820 sqft
  • Built in 1910
In A Al-Hammouri, Vareha Alhammour
2925 6th St, Minneapolis, MN 55411-1501
Single Family Residential
  • 2 beds
  • 1 bath
  • Lot: 4,516 sqft
  • Built in 1981
Shauntel J Beasley, Cassel Bobo
3248 6th St, Minneapolis, MN 55412-2622
Single Family Residential
  • Lot: 5,338 sqft
William B Austin, Cindy Drewcilla Braxton
3422 6th St, Minneapolis, MN 55412-2626
Single Family Residential
  • 2 beds
  • 1 bath
  • Lot: 6,280 sqft
  • Built in 1913
Gerald W Hartfiel, Joanne M Hartfiel
3810 6th St, Minneapolis, MN 55412-2103
Single Family Residential
  • 2 beds
  • 1 bath
  • Lot: 6,280 sqft
  • Built in 1916
Bong Vue, Mai M Vue
 

FAQ about the house at 3855 6th St, Minneapolis, MN


NOTICE: You may not use RadioAwards or the information it provides to make decisions about employment, credit, housing or any other purpose that would require Fair Credit Reporting Act (FCRA) compliance. RadioAwards is not a Consumer Reporting Agency (CRA) as defined by the FCRA and does not provide consumer reports.