2716 St Paul St Denver, CO 80210

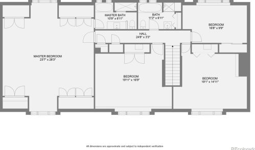
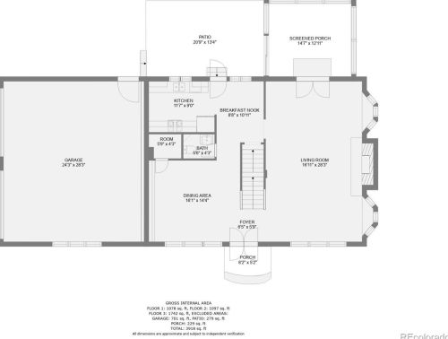
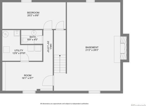
  • 5 Beds
  • 4 Baths
  • 3.917 square feet
Sold May 2023
$1,295,000
Property Report

Information about property on 2716 St Paul St, Denver CO, 80210. Find out owner contacts, building history, price, neighborhood at Homemetry Address Directory.

Property Details

Where is 2716 St Paul St, Denver CO located on map?

Market Activities

To date, we have no information about market activities in 2025
May 2023 Sold
2716 St Paul St
Price history :
  • Single Family
  • 3,917 sqft
  • 5 beds
  • 4 baths

View more

St Paul St Fire Incident History

To date, we have no information about fire incidents in 2025
18 Oct 2017 Brush, or brush and grass mixture fire
Property Use —
1 or 2 family dwelling
29 Aug 2016 Natural vegetation fire, other
Property Use —
Residential street, road or residential driveway
Area of Origin —
Outside area, other
First Ignition —
Heavy vegetation - not crop, including trees
Heat Source —
Lightning
28 Dec 2015 Building fires
Property Use —
1 or 2 family dwelling
Area of Origin —
Attic: vacant, crawl space above top story, cupola
First Ignition —
Structural member or framing
Heat Source —
Arcing
04 Aug 2015 Building fires
Property Use —
1 or 2 family dwelling
Area of Origin —
Vehicle storage area; garage, carport

View more

St Paul St Incidents registered in FEMA
(Federal Emergency Management Agency)

To date, we have no information about incidents registered in FEMA in 2025
30 Dec 2015 Carbon monoxide incident
Property Use —
Residential, other
23 Dec 2015 Hazardous condition, other
Property Use —
Mental retardation/development disability facility
25 Nov 2015 Carbon monoxide incident
Property Use —
Multifamily dwellings
07 Oct 2015 Cooking fire, confined to container
Property Use —
1 or 2 family dwelling

View more

Properties Nearby

Street AddressResidens/Landlords
858 St Paul St, Denver, CO 80209
  • 4 beds
  • 2 baths
  • Lot: 2,051 sqft
1400 St Paul St, Denver, CO 80206
  • 5 beds
  • 4 baths
  • Lot: 3,748 sqft
1475 St Paul St, Denver, CO 80210
  • 6 beds
  • 5 baths
  • 5,402 sqft
Benjamin D Grossman
1660 St Paul St, Denver, CO 80210
  • 4 beds
  • 5 baths
  • Lot: 4,654 sqft
Janine C Martell, Kathy Mosgovoy Odell
2165 St Paul St, Denver, CO 80210
  • 4 beds
  • 4 baths
  • Lot: 3,618 sqft
3043 St Paul St, Denver, CO 80205
  • 3 beds
  • 1 bath
  • Lot: 959 sqft
Wells Masonry Bill, Joyce L Turner
 

FAQ about the house at 2716 St Paul St, Denver, CO


NOTICE: You may not use RadioAwards or the information it provides to make decisions about employment, credit, housing or any other purpose that would require Fair Credit Reporting Act (FCRA) compliance. RadioAwards is not a Consumer Reporting Agency (CRA) as defined by the FCRA and does not provide consumer reports.