2676 Field Spring Dr, Lithonia GA  30058-3843 exterior 2676 Field Spring Dr, Lithonia GA  30058-3843 exterior 2676 Field Spring Dr, Lithonia GA  30058-3843 exterior

2676 Field Spring Dr Lithonia, GA 30058 / 3843

Residence for Single Family

(UPDATED: 09/01/2025)
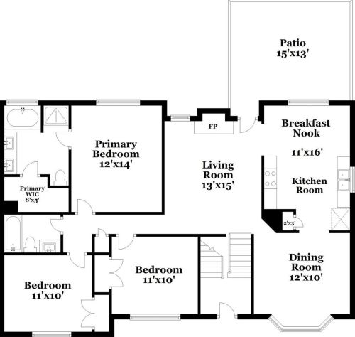
  • 3 Beds
  • 3 Baths
  • 8.276 square feet
Property Report

Information about property on 2676 Field Spring Dr, Lithonia GA, 30058-3843. Find out owner contacts, building history, price, neighborhood at Homemetry Address Directory.

Property Details

As is shown in our records this property is placed at 2676 Field Spring Dr, Lithonia, GA.

Facts

  • Built in 1997
  • Lot size 8,276 sqft
  • Construction Frame
  • Bedrooms 3
  • Foundation Concrete
  • Air conditioning Central
  • Exterior Home Features
  • Exterior walls Wood
  • Parking & Garage
  • Parking Built-in
  • Parking spaces 2

Misc

  • Units 1

Listing info

  • Last sold Sep 2012 for $55,100

Features

  • Fireplace
  • Construction quality: 6.0

Householders and Tenants for 2676 Field Spring Dr, Lithonia GA

Possible residents contact details

Person Name Phone Number Additional Info
Keith Campbell
770-987-****
Lisa A Orr
Marcelle Welch
678-418-****
Nancy N Campbell Age: 58
770-987-****
Nettie Campbell
770-987-****
Semona Campbell Age: 60
770-608-****
Residential status:
Homeowner
Job:
Production Occupations

Purchase History

DateEventPriceSourceAgents
09/07/2012 Sold $55,100 Public records
07/21/2012 Sold $25,500 Public records
08/25/2004 Sold $139,500 Public records
12/24/1997 Sold $101,800 Public records

PURCHASE HISTORY 2676 Field Spring Dr, Lithonia GA

12/24/199707/21/2012Date$0$10k$20k$30k$40k$50k$60k$70k$80k$90k$100k$110k$120k$130k$140kPrices

Cost estimate history

YearTaxAssessmentMarket
2014 $1,314 N/A N/A
2013 N/A $21,160 $52,900

Where is 2676 Field Spring Dr, Lithonia GA located on map?

Market Activities

To date, we have no information about market activities in 2025
Apr 2024 Recent Rent
2676 Field Spring Dr
Price history :
  • Single Family
  • 4 beds
  • 3 baths
Oct 2023 Recent Rent
2676 Field Spring Dr
Price history :
  • Single Family
  • 4 beds
  • 3 baths
Sep 2023 Recent Rent
2676 Field Spring Dr
Price history :
  • Single Family
  • 4 beds
  • 3 baths
Oct 2017 Recent Rent
2676 Field Spring Dr
Price history :
  • 1,782
  • 4 beds
  • 3 baths

View more

Field Spring Dr Fire Incident History

To date, we have no information about fire incidents in 2025
13 Dec 2010 Building fires
Property Use —
1 or 2 family dwelling
Area of Origin —
Outside area, other
First Ignition —
Furniture, utensils, other
Heat Source —
Candle
24 Sep 2008 Grass fire
Property Use —
Graded and cared-for plots of land
13 Nov 2003 Forest, woods or wildland fire
Property Use —
Vacant lot
Area of Origin —
Wildland, woods
First Ignition —
Heavy vegetation - not crop, including trees
12 Jan 2000 Natural vegetation fire, other
Property Use —
1 or 2 family dwelling
Area of Origin —
Open area - outside; included are farmland, field
First Ignition —
Light vegetation - not crop, including grass
Heat Source —
Match

View more

Fld Spg Dr Incidents registered in FEMA
(Federal Emergency Management Agency)

To date, we have no information about incidents registered in FEMA in 2025
26 Jun 2014 Unauthorized burning
Property Use —
1 or 2 family dwelling
01 Feb 2010 Heat from short circuit (wiring), defective/worn
Property Use —
1 or 2 family dwelling
20 Sep 2009 Heat from short circuit (wiring), defective/worn
Property Use —
Residential, other
26 Jan 2007 Outside rubbish fire, other
Property Use —
1 or 2 family dwelling

View more

Properties Nearby

Street AddressResidens/Landlords
2658 Fld Spg Dr, Lithonia, GA 30058-3843
Single Family Residential
  • 3 beds
  • 2 baths
  • Lot: 8,276 sqft
  • Built in 1997
A & M Enterprise, To T Cerri
2661 Fld Spg Dr, Lithonia, GA 30058-3842
Single Family Residential
  • 3 beds
  • 2 baths
  • Lot: 9,148 sqft
  • Built in 1996
Eugenia L Wallace
2664 Fld Spg Dr, Lithonia, GA 30058-3843
Single Family Residential
  • 3 beds
  • 2 baths
  • Lot: 8,276 sqft
  • Built in 1997
Linda D Crawley, Stephanie Crowley
2670 Fld Spg Dr, Lithonia, GA 30058-3843
Single Family Residential
  • 4 beds
  • 2 baths
  • Lot: 8,276 sqft
  • Built in 1997
Jestena L Bernard, Julius Cato
2673 Fld Spg Dr, Lithonia, GA 30058-3842
Single Family Residential
  • 4 beds
  • 2 baths
  • Lot: 9,148 sqft
  • Built in 1997
Ina Allicott, Yolanda Carter
2682 Fld Spg Dr, Lithonia, GA 30058-3843
Single Family Residential
  • 4 beds
  • 2 baths
  • Lot: 8,276 sqft
  • Built in 1997
Lajuana Booker, Anne B Eubanks
2685 Fld Spg Dr, Lithonia, GA 30058-3849
Single Family Residential
  • 4 beds
  • 2 baths
  • Lot: 8,712 sqft
  • Built in 1997
Laquanda Avery, Laquanda Brown
2688 Fld Spg Dr, Lithonia, GA 30058-3843
Single Family Residential
  • 4 beds
  • 3 baths
  • Lot: 8,276 sqft
  • Built in 1997
J C Home Inspection & Appraisal, J C HOME INSPECTION & APPRSL
2694 Fld Spg Dr, Lithonia, GA 30058-3843
Single Family Residential
  • 4 beds
  • 2 baths
  • Lot: 8,276 sqft
  • Built in 1997
Christine Amertil, Demetria Anderson
2700 Fld Spg Dr, Lithonia, GA 30058-3848
Single Family Residential
  • 4 beds
  • 3 baths
  • Lot: 7,405 sqft
  • Built in 1997
Rhondalynn M Hamilton, Kamesha P Mcmillan
 

FAQ about the house at 2676 Fld Spg Dr, Lithonia, GA


NOTICE: You may not use RadioAwards or the information it provides to make decisions about employment, credit, housing or any other purpose that would require Fair Credit Reporting Act (FCRA) compliance. RadioAwards is not a Consumer Reporting Agency (CRA) as defined by the FCRA and does not provide consumer reports.