Market Activities
To date, we have no information about market activities in 2025
Jun 2024
Listed for sale
May 2024
Listed for sale
Apr 2024
Listed for sale
Building Permits
To date, we have no information about building permits in 2025
Sep 3, 2002
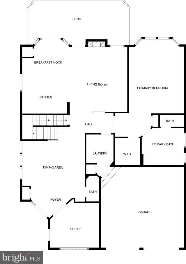
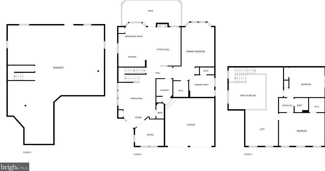
Description: Construct 306 sq. ft. deck. call 301-258-6338 to schedule the following inspections: footings #2000 framing (if less than 3 feet from grade) #2015 final #2030 approved as noted on plans and attached comment sheet. post footing must be at least two feet from property line.
- Parcel #: 160903291952
- Permit #: PI-B021200
Jul 30, 2001
Description: Construct new s/f dwelling olympic elevation #2 with attached garage and deck. street and dwelling address numbers shall be displayed at all times. note: walls located 3 feet or less from the property line shall be rated in accordance with the 1995 c.a.b.o. dwelling code section 302.
- Parcel #: 160903291952
- Permit #: PI-B010722
Jul 11, 2001
- Parcel #: 160903291952
- Permit #: PI-BD01069
Jul 11, 2001
Description: On-site improvements including landscaping, leadwalks, and driveway as shown on approved plans. bond in the amount of $3,000 filed with the city, 7/11/2001, ck#5158 (bond released 11/21/02 gr). conditions: city inspection is required for driveway (subgrade,final). driveways are to be 4" base and 2" surface course asphalt or 3" base and 1" surface course asphalt on 6" of stone. leadwalks are to be certified by a city approved inspection firm. final inspection and approval of all work is required oruir ti bibd rekeasem and all sda conditions must be met.
- Parcel #: 160903291952
- Permit #: PI-S010098
Shadow Glen Ct Fire Incident History
To date, we have no information about fire incidents in 2025
17 Nov 2013
Cooking fire, confined to container
Property Use —
1 or 2 family dwelling
Area of Origin —
Other
First Ignition —
Item First Ignited, Other
Heat Source —
Heat source: other
Properties Nearby
| Street Address | Residens/Landlords |
|---|






















































