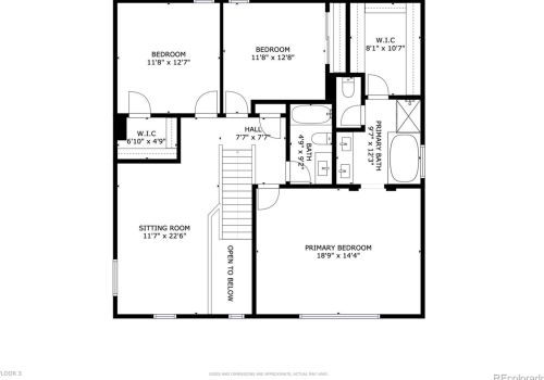
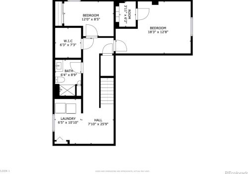
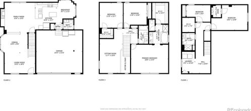
20445 Grand Ln Denver, CO 80015 / 6621

Residence for Single Family

(UPDATED: 09/01/2025)
  • 2 Beds
  • 2 Baths
  • 8.364 square feet
Sold Jul 2021
$585,000
Property Report

Information about property on 20445 Grand Ln, Denver CO, 80015-6621. Find out owner contacts, building history, price, neighborhood at Homemetry Address Directory.

Property Details

Facts

  • Built in 2001
  • Lot size 8,364 sqft
  • Construction Frame
  • Bedrooms 2
  • Stories 2 story with basement
  • Basement Unfinished basement
  • Foundation Concrete
  • Structure type Contemporary
  • Heating & Cooling
  • Heat type Forced air unit
  • Cooling Central
  • Interior Home Features
  • Flooring Carpet
  • Exterior Home Features
  • Exterior material Other
  • Exterior walls Wood
  • Roof type Asphalt
  • Parking & Garage
  • Parking Attached Garage

Listing info

  • Last sold Aug 2013 for $270,000

Features

  • Fireplace
  • Garden
  • Lawn
  • Porch
  • Dishwasher
  • Microwave
  • Construction quality: 8.0
  • View: Mountain

Householders and Tenants for 20445 Grand Ln, Denver CO

Possible residents contact details

Person Name Phone Number Additional Info
Elizabeth A Hiltenbrand
303-766-****
Elizabeth A Klumker Age: 50
303-766-****
Eric R Klumker
303-766-****
Joseph M Jording Age: 41
Residential status:
Homeowner
Richard D Klumker
303-766-****

Purchase History

DateEventPriceSourceAgents
08/30/2013 Sold $270,000 Public records Tom Gross
06/28/2001 Sold $221,009 Public records

Cost estimate history

YearTaxAssessmentMarket
2013 $2,840 $18,320 $215,000

Where is 20445 Grand Ln, Denver CO located on map?

Market Activities

To date, we have no information about market activities in 2025
Jul 2021 Sold
20445 Grand Ln
Price history :
  • Single Family
  • 2,780 sqft
  • 4 beds
  • 4 baths
Jun 2021 Sold
20445 Grand Ln
Price history :
  • Single Family
  • 2,780 sqft
  • 4 beds
  • 4 baths

View more

Grand Ln Incidents registered in FEMA
(Federal Emergency Management Agency)

To date, we have no information about incidents registered in FEMA in 2025
08 Aug 2003 Vehicle accident with injuries
Property Use —
1 or 2 family dwelling
20 Jul 2003 EMS call, excluding vehicle accident with injury
Property Use —
1 or 2 family dwelling
17 Jul 2002 EMS call, excluding vehicle accident with injury
Property Use —
1 or 2 family dwelling
11 Oct 2001 Smoke detector activation due to malfunction
Property Use —
1 or 2 family dwelling

View more

Properties Nearby

Street AddressResidens/Landlords
20124 Grand Ln, Denver, CO 80015-6614
Single Family Residential
  • 3 beds
  • 2 baths
  • Lot: 4,574 sqft
  • Built in 2000
Fikrie Avdili, Ilir Avdili
20184 Grand Ln, Denver, CO 80015-6614
Single Family Residential
  • 4 beds
  • 2 baths
  • Lot: 4,661 sqft
  • Built in 2000
Sabrena Hensley, Herald H Hensley
20435 Grand Ln, Denver, CO 80015-6621
Single Family
  • 3 beds
  • 2.5 baths
  • 1,935 sqft
  • Built in 2001
Christopher M Ocampo, Anna Pond
20455 Grand Ln, Denver, CO 80015-6621
Single Family Residential
  • 3 beds
  • 2 baths
  • Lot: 6,403 sqft
  • Built in 2001
Parker Diesel and Automotive, Douglas K Milliron
20456 Grand Ln, Denver, CO 80015-6622
Single Family
  • 3 beds
  • 2.5 baths
  • 1,935 sqft
  • Built in 2001
Pit Bull Express LLC, Irina Lobyan
20475 Grand Ln, Denver, CO 80015-6621
Single Family Residential
  • 3 beds
  • 2 baths
  • Lot: 5,271 sqft
  • Built in 2001
Jennifer M Brandon, Justin Tanner Brandon
 

FAQ about the house at 20445 Grand Ln, Denver, CO


NOTICE: You may not use RadioAwards or the information it provides to make decisions about employment, credit, housing or any other purpose that would require Fair Credit Reporting Act (FCRA) compliance. RadioAwards is not a Consumer Reporting Agency (CRA) as defined by the FCRA and does not provide consumer reports.