1712 Brentwood Ave Upland, CA 91784 / 1792

Residence for Single Family

(UPDATED: 08/27/2025)
  • 5 Beds
  • 3 Baths
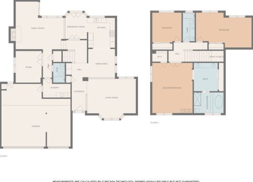
  • 3.101 square feet
Sold Mar 2023
$1,030,000
Property Report

Information about property on 1712 Brentwood Ave, Upland CA, 91784-1792. Find out owner contacts, building history, price, neighborhood at Homemetry Address Directory.

Property Details

A hefty two-story single-family modern style residence at 1712 Brentwood Avenue, Upland, California.

Facts

  • Built in 1980
  • Lot size 0,29 acres
  • Floor size 3,101 sqft
  • Rooms 10
  • Bedrooms 5
  • Bathrooms 3
  • Stories 2
  • Structure type Modern
  • Heating & Cooling
  • Heat type Other
  • Cooling Refrigeration
  • Parking & Garage
  • Parking Garage - Attached, 3 spaces, 740 sqft

Misc

  • Units 1

Listing info

  • Last sold Jul 1991 for $370,000

Features

  • Fireplace

Householders and Tenants for 1712 Brentwood Ave, Upland CA

Possible residents contact details

Person Name Phone Number Additional Info
Deborah L Doan Age: 55
909-931-****
Residential status:
Homeowner
Job:
Precision Production Occupations
Duke Clark
760-630-****
Jonnie J Doan Age: 81
909-931-****
Residential status:
Homeowner
Job:
Precision Production Occupations
Larry L Doan Age: 82
909-931-****
Residential status:
Homeowner
Job:
Precision Production Occupations
Mary Clark
760-630-****

Where is 1712 Brentwood Ave, Upland CA located on map?

Market Activities

To date, we have no information about market activities in 2025
Mar 2023 Sold
1712 Brentwood Ave
Price history :
  • Single Family
  • 3,101 sqft
  • 4 beds
  • 3 baths
Jan 2023 Sold
1712 Brentwood Ave
Price history :
  • Single Family
  • 3,101 sqft
  • 4 beds
  • 3 baths

View more

Properties Nearby

Street Address Residens/Landlords
Eva Kowalski
641 Brentwood Ave, Upland, CA 91786-4330
Single Family Residential
  • 3 beds
  • 2 baths
  • Lot: 7,500 sqft
  • Built in 1962
Chris P Hopkin, Chris W Mellen
723 Brentwood Ave, Upland, CA 91786-4332
Single Family
  • 3 beds
  • 2 baths
  • 2,509 sqft
  • Built in 1969
 

FAQ about the house at 1712 Brentwood Ave, Upland, CA


NOTICE: You may not use RadioAwards or the information it provides to make decisions about employment, credit, housing or any other purpose that would require Fair Credit Reporting Act (FCRA) compliance. RadioAwards is not a Consumer Reporting Agency (CRA) as defined by the FCRA and does not provide consumer reports.