168 Agostino Irvine, CA 92614 / 8421

Residence for Single Family

(UPDATED: 08/02/2025)
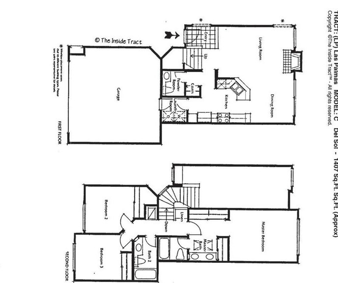
  • 3 Beds
  • 2 Baths
  • 1.285 square feet
Sold Apr 2024
$1,079,000
Property Report

Information about property on 168 Agostino, Irvine CA, 92614-8421. Find out owner contacts, building history, price, neighborhood at Homemetry Address Directory.

Property Details

At 168 Agostino, Irvine, CA based a property, which was built in the eighties and is positioned down the street.

Facts

  • Built in 1989
  • Floor size 1,285 sqft
  • Rooms 6
  • Bedrooms 3
  • Bathrooms 2,5
  • Parking & Garage
  • Parking Garage - Attached

Misc

  • Units 1

Listing info

  • Last sold Dec 1989 for $338,500

Householders and Tenants for 168 Agostino, Irvine CA

Possible residents contact details

Person Name Phone Number Additional Info
Barry N Kubishta
Haiok Chong
907-333-****
Jason D Zirpolo Age: 54
949-660-****
Julian J Dopeso
Lesa L Kubishta
Robert B Grabarsky Age: 52
949-477-****

Cost estimate history

YearTaxAssessmentMarket
2014 $4,302 N/A N/A
2013 N/A $356,050 N/A

Where is 168 Agostino, Irvine CA located on map?

Market Activities

To date, we have no information about market activities in 2025
Apr 2024 Sold
168 Agostino
Price history :
  • Condo
  • 1,407 sqft
  • 3 beds
  • 3 baths
Mar 2024 Sold
168 Agostino
Price history :
  • Condo
  • 1,407 sqft
  • 3 beds
  • 3 baths
Feb 2024 Sold
168 Agostino
Price history :
  • Condo
  • 1,407 sqft
  • 3 beds
  • 3 baths
Feb 2024 Sold
168 Agostino
Price history :
  • Condo
  • 1,407 sqft
  • 3 beds
  • 3 baths

View more

Agostino Fire Incident History

To date, we have no information about fire incidents in 2025
14 Jan 2007 Building fires
Property Use —
1 or 2 family dwelling
Area of Origin —
Vehicle storage area; garage, carport
First Ignition —
Electrical wire, cable insulation
Heat Source —
Hot or smoldering object, other

Agostino Incidents registered in FEMA
(Federal Emergency Management Agency)

To date, we have no information about incidents registered in FEMA in 2025
14 Jan 2007 Building fires
26 Dec 2005 Chimney or flue fire, confined to chimney or flue
Property Use —
1 or 2 family dwelling

Properties Nearby

Street AddressResidens/Landlords
2 Agostino, Irvine, CA 92614-8412
Condominium (Residential)
  • 3 beds
  • 2.5 baths
  • 1,610 sqft
  • Built in 1989
Vito Driscoll, Susan L Kuper
 

FAQ about the house at 168 Agostino, Irvine, CA


NOTICE: You may not use RadioAwards or the information it provides to make decisions about employment, credit, housing or any other purpose that would require Fair Credit Reporting Act (FCRA) compliance. RadioAwards is not a Consumer Reporting Agency (CRA) as defined by the FCRA and does not provide consumer reports.