1439 George Dr Conyers, GA 30013 / 2009

Residence for Single Family

(UPDATED: 09/14/2025)
  • 3 Beds
  • 2 Baths
  • 0.45 acres
Sold Jun 2024
$255,000
Property Report

Information about property on 1439 George Dr, Conyers GA, 30013-2009. Find out owner contacts, building history, price, neighborhood at Homemetry Address Directory.

Property Details

At 1439 George Drive, Conyers, GA there is a single-family possession.

Facts

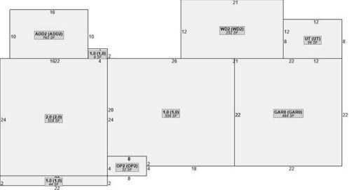
  • Built in 1973
  • Lot size 0,45 acres
  • Rooms 7
  • Bedrooms 3
  • Bathrooms 2
  • Last remodel year 1986
  • Basement Improved Basement (Finished)
  • Foundation Masonry
  • Air conditioning Central
  • Exterior Home Features
  • Exterior walls Wood
  • Roof type Asphalt
  • Parking & Garage
  • Parking 484 sqft

Listing info

  • Last sold Jul 2013 for $12,000

Features

  • Fireplace

Householders and Tenants for 1439 George Dr, Conyers GA

Possible residents contact details

Person Name Phone Number Additional Info
Jennifer L Spade
770-929-****
Kathleen M Spade Age: 60
770-929-****
Residential status:
Homeowner
Job:
Protective Service Occupations
Kaylin K Spade Age: 33
Residential status:
Homeowner
Matthew B Spade Age: 58
770-605-****
Residential status:
Homeowner
Job:
Protective Service Occupations
Sean M Spade Age: 40
770-605-****
Residential status:
Homeowner
Trisha M Spade Age: 34
Residential status:
Homeowner

Purchase History

DateEventPriceSourceAgents
09/29/1997 Sold $88,000 Public records

Cost estimate history

YearTaxAssessmentMarket
2014 $994 N/A N/A
2013 N/A $35,680 $46,600

Where is 1439 George Dr, Conyers GA located on map?

Market Activities

To date, we have no information about market activities in 2025
Jun 2024 Sold
1439 George Dr
Price history :
  • Single Family
  • 4 beds
  • 2 baths
Jan 2024 Sold
1439 George Dr
Price history :
  • Single Family
  • 4 beds
  • 2 baths
Nov 2023 Sold
1439 George Dr
Price history :
  • Single Family
  • 4 beds
  • 2 baths
Nov 2023 Sold
1439 George Dr
Price history :
  • Single Family
  • 4 beds
  • 2 baths
Oct 2023 Sold
1439 George Dr
Price history :
  • Single Family
  • 4 beds
  • 2 baths
Oct 2023 Sold
1439 George Dr
Price history :
  • Single Family
  • 4 beds
  • 2 baths

George Dr Fire Incident History

To date, we have no information about fire incidents in 2025
25 Nov 2019 Building fires
Property Use —
1 or 2 family dwelling
Area of Origin —
Cooking area, kitchen
First Ignition —
Cooking materials, including edible materials
Heat Source —
Radiated, conducted heat from operating equipment
28 Jan 2000 Cultivated grain or crop fire
Property Use —
Open land or field
Area of Origin —
Open area - outside; included are farmland, field
First Ignition —
Light vegetation - not crop, including grass
Heat Source —
Hot ember or ash

George Dr Incidents registered in FEMA
(Federal Emergency Management Agency)

To date, we have no information about incidents registered in FEMA in 2025
29 Jan 2003 False alarm or false call, other
Property Use —
1 or 2 family dwelling

Properties Nearby

Street AddressResidens/Landlords
1414 George Dr, Conyers, GA 30013-2023
Single Family Residential
  • 3 beds
  • 2 baths
  • Lot: 0.55 acres
  • Built in 1971
Beth C Littlejohn, Helen C Littlejohn
1427 George Dr, Conyers, GA 30013-2009
Single Family Residential
  • 3 beds
  • 2 baths
  • Lot: 0.45 acres
  • Built in 1973
Angela Ayers, John I Bruno
1430 George Dr, Conyers, GA 30013-2023
Single Family Residential
  • 3 beds
  • 2 baths
  • Lot: 0.55 acres
  • Built in 1972
William P. James, Ii, James Bonnie
1447 George Dr, Conyers, GA 30013-2009
Single Family Residential
  • 3 beds
  • 2 baths
  • 1,830 sqft
  • Built in 1973
Gia B Davis, Lory C Hall
1448 George Dr, Conyers, GA 30013-2035
Single Family Residential
  • 3 beds
  • 2 baths
  • Lot: 0.5 acres
  • Built in 1972
Ethridge Bennett, Paulene R Bennett
1459 George Dr, Conyers, GA 30013-2009
Single Family Residential
  • 3 beds
  • 2 baths
  • Lot: 0.45 acres
  • Built in 1993
Lory C Hall, Connie C Hull
1460 George Dr, Conyers, GA 30013-2035
Single Family Residential
  • 4 beds
  • 2 baths
  • Lot: 0.52 acres
  • Built in 1972
Lorraine G Parks, Lorrie A Parks
1467 George Dr, Conyers, GA 30013-2009
Single Family Residential
  • 4 beds
  • 2 baths
  • Lot: 0.45 acres
  • Built in 1973
Debbie L Leclercq, Debbie L Wright
1478 George Dr, Conyers, GA 30013-2034
Single Family Residential
  • 3 beds
  • 2 baths
  • Lot: 0.48 acres
  • Built in 1981
Jessica L Harwood, Kris Harwood
1479 George Dr, Conyers, GA 30013-2009
Single Family Residential
  • 3 beds
  • 2 baths
  • Lot: 0.45 acres
  • Built in 1973
Deirdre P Howell, V P Lokey
 

FAQ about the house at 1439 George Dr, Conyers, GA


NOTICE: You may not use RadioAwards or the information it provides to make decisions about employment, credit, housing or any other purpose that would require Fair Credit Reporting Act (FCRA) compliance. RadioAwards is not a Consumer Reporting Agency (CRA) as defined by the FCRA and does not provide consumer reports.