1345 Ward St, Berkeley CA  94702-2323 exterior 1345 Ward St, Berkeley CA  94702-2323 exterior 1345 Ward St, Berkeley CA  94702-2323 exterior

1345 Ward St Berkeley, CA 94702 / 2323

Residence for Single Family

(UPDATED: 10/15/2023)
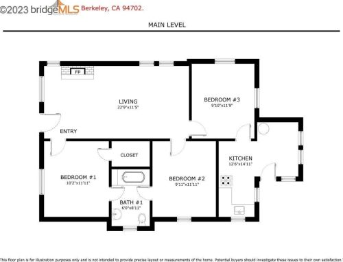
  • 2 Beds
  • 2 Baths
  • 3.500 square feet
For Sale
$979,000
Property Report

Information about property on 1345 Ward St, Berkeley CA, 94702-2323. Find out owner contacts, building history, price, neighborhood at Homemetry Address Directory.

Property Details

The multi-family property is situated at 1345 Ward St, Berkeley, CA.

Facts

  • Built in 1932
  • Lot size 3,500 sqft
  • Construction Frame
  • Stories 2 story
  • Last remodel year 1937
  • Structure type Other

Misc

  • Units 2

Listing info

  • Last sold Dec 1986 for $110,000

Householders and Tenants for 1345 Ward St, Berkeley CA

Possible residents contact details

Person Name Phone Number Additional Info
Elise C Edmond
Henrretta B Gaskins
510-649-****

Cost estimate history

YearTaxAssessmentMarket
2014 $5,357 $175,190 N/A

Where is 1345 Ward St, Berkeley CA located on map?

Market Activities

To date, we have no information about market activities in 2025
Oct 2023 Listed for sale
1345 Ward St
Price history :
  • Single Family
  • 2 beds
  • 1 bath
Apr 2023 Listed for sale
1345 Ward St
Price history :
  • Single Family
  • 2 beds
  • 1 bath

View more

Ward St Fire Incident History

To date, we have no information about fire incidents in 2025
06 Aug 2018 Passenger vehicle fire
Property Use —
Outside or special property, other
Area of Origin —
Engine area, running gear, wheel area
First Ignition —
Item First Ignited, Other
Heat Source —
Heat from powered equipment, other
15 Nov 2017 Building fires
Property Use —
1 or 2 family dwelling
Area of Origin —
Function area, other
Heat Source —
Heat from powered equipment, other
02 Jun 2015 Building fires
Property Use —
Multifamily dwellings
Area of Origin —
Function area, other
First Ignition —
Wearing apparel not on a person
Heat Source —
Hot or smoldering object, other
22 May 2015 Building fires
Property Use —
Parking garage, (detached residential garage)
Area of Origin —
Vehicle storage area; garage, carport
First Ignition —
Upholstered sofa, chair, vehicle seats

View more

Ward St Incidents registered in FEMA
(Federal Emergency Management Agency)

To date, we have no information about incidents registered in FEMA in 2025
20 Oct 2015 Power line down
Property Use —
Residential street, road or residential driveway
04 May 2015 Gas leak (natural gas or LPG)
Property Use —
1 or 2 family dwelling
18 Feb 2014 Trash or rubbish fire, contained
Property Use —
Multifamily dwellings
16 Nov 2013 Outside rubbish, trash or waste fire
Property Use —
Multifamily dwellings

View more

Properties Nearby

Street AddressResidens/Landlords
1203 Ward St, Berkeley, CA 94702-2235
Single Family Residential
  • 3 beds
  • 1 bath
  • Lot: 3,500 sqft
  • Built in 1944
Angela Lai Chan, Michael K Goldberg
1207 Ward St, Berkeley, CA 94702-2235
Single Family Residential
  • 2 beds
  • 2 baths
  • Lot: 3,500 sqft
  • Built in 1922
Gwen P Jordan, Gwendolyn P Jordan
1221 Ward St, Berkeley, CA 94702-2235
Single Family Residential
  • 2 beds
  • 1 bath
  • Lot: 3,500 sqft
  • Built in 1922
James W Alberty, Johnnie Alberty
1227 Ward St, Berkeley, CA 94702-2235
Single Family Residential
  • 2 beds
  • 1 bath
  • Lot: 3,500 sqft
  • Built in 1918
Pamela M Bates
1333 Ward St, Berkeley, CA 94702-2323
Single Family Residential
  • 3 beds
  • 1 bath
  • Lot: 3,500 sqft
  • Built in 1912
Henry Lee Davis, Davis Sheryl Evans
1423 Ward St, Berkeley, CA 94702-2325
Multi-Family Home
  • 2 beds
  • 2 baths
  • Lot: 3,343 sqft
  • Built in 1918
Bettie A Badie, Nealon Badie
1432 Ward St, Berkeley, CA 94702-2326
Single Family Residential
  • 3 beds
  • 1 bath
  • Lot: 3,450 sqft
  • Built in 1927
Janet Bayer, Dwight Belton
1450 Ward St, Berkeley, CA 94702-2326
Multi-Family Home
  • 4 beds
  • 4 baths
  • Lot: 3,750 sqft
  • Built in 1954
Charlie B Rone, Mary L Wainwright
1500 Ward St, Berkeley, CA 94703-1887
Multi-Family Home
  • 3 beds
  • 1 bath
  • Lot: 4,300 sqft
  • Built in 1923
Tyrone Blackmore, Tyrone Blacwell
1508 Ward St, Berkeley, CA 94703-1826
Multi-Family Home
  • 5 beds
  • 2 baths
  • Lot: 3,200 sqft
  • Built in 1912
Jennifer Burke, Richard E Schwarzmann
 

FAQ about the house at 1345 Ward St, Berkeley, CA


NOTICE: You may not use RadioAwards or the information it provides to make decisions about employment, credit, housing or any other purpose that would require Fair Credit Reporting Act (FCRA) compliance. RadioAwards is not a Consumer Reporting Agency (CRA) as defined by the FCRA and does not provide consumer reports.