13310 Grove Way Westminster, CO 80020 / 5224

Residence for Single Family

(UPDATED: 07/08/2025)
  • 4 Beds
  • 2 Baths
  • 1.590 square feet
Sold Apr 2023
$525,000
Property Report

Information about property on 13310 Grove Way, Westminster CO, 80020-5224. Find out owner contacts, building history, price, neighborhood at Homemetry Address Directory.

Property Details

This approximately sixteen hundred square feet property with 4 bedrooms and 2 bathrooms was built in the seventies on 0,19 acres.

Facts

  • Built in 1973
  • Lot size 8,460 sqft
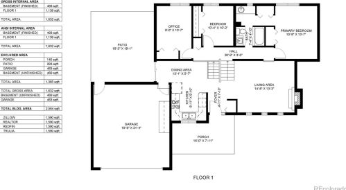
  • Floor size 1,590 sqft
  • Bedrooms 4
  • Bathrooms 2
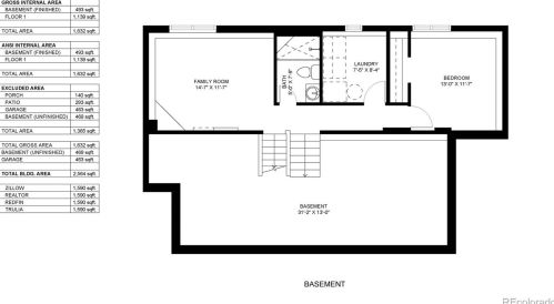
  • Basement area Unfinished basement, 546 sqft
  • Exterior Home Features
  • Roof type Asphalt
  • Parking & Garage
  • Parking Garage - Attached, 440 sqft

Misc

  • Units 1

Listing info

  • Last sold May 2002 for $195,900

Householders and Tenants for 13310 Grove Way, Westminster CO

Possible residents contact details

Person Name Phone Number Additional Info
Brad G Smith Age: 58
303-469-****
Bradley G Smith Age: 58
303-469-****
David Cruthers Age: 66
303-514-****
Residential status:
Homeowner
Grace Cruthers Age: 66
303-566-****
Jessica G Cruthers Age: 40

Possible Businesses

Organization Phone Number Additional Info
Calwood Townhomes Association
Industry:
Civic/Social Association

Where is 13310 Grove Way, Westminster CO located on map?

Market Activities

To date, we have no information about market activities in 2025
Apr 2023 Sold
13310 Grove Way
Price history :
  • Single Family
  • 2,070 sqft
  • 4 beds
  • 2 baths

View more

Grove Way Fire Incident History

To date, we have no information about fire incidents in 2025
16 Feb 2012 Passenger vehicle fire
Property Use —
Vehicle parking area
Area of Origin —
Operator/passenger area of transportation equip.
First Ignition —
Upholstered sofa, chair, vehicle seats
Heat Source —
Heat from direct flame, convection currents
25 Sep 2011 Passenger vehicle fire
Property Use —
Residential street, road or residential driveway
Area of Origin —
Engine area, running gear, wheel area
01 Apr 2008 Building fires
Property Use —
1 or 2 family dwelling
Area of Origin —
Bedroom - < 5 persons; included are jail or prison
First Ignition —
Bedding; blanket, sheet, comforter
Heat Source —
Hot ember or ash
13 Feb 2006 Passenger vehicle fire
Property Use —
Vehicle parking area
Area of Origin —
Engine area, running gear, wheel area

View more

Grove Way Incidents registered in FEMA
(Federal Emergency Management Agency)

To date, we have no information about incidents registered in FEMA in 2025
21 Jun 2014 Authorized controlled burning
Property Use —
1 or 2 family dwelling
17 Apr 2011 Gas leak (natural gas or LPG)
Property Use —
1 or 2 family dwelling
10 Jan 2011 Cooking fire, confined to container
Property Use —
1 or 2 family dwelling
12 Jul 2009 Carbon monoxide incident
Property Use —
1 or 2 family dwelling

View more

Properties Nearby

Street AddressResidens/Landlords
 

FAQ about the house at 13310 Grv Way, Westminster, CO


NOTICE: You may not use RadioAwards or the information it provides to make decisions about employment, credit, housing or any other purpose that would require Fair Credit Reporting Act (FCRA) compliance. RadioAwards is not a Consumer Reporting Agency (CRA) as defined by the FCRA and does not provide consumer reports.