119 Hickson St Ridge Spring, SC 29129 / 9432

Residence for Single Family

(UPDATED: 09/20/2025)
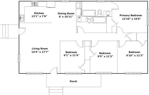
  • 4 Beds
  • 2 Baths
  • 1.253 square feet
Sold Sep 2023
$130,000
Property Report

Information about property on 119 Hickson St, Ridge Spring SC, 29129-9432. Find out owner contacts, building history, price, neighborhood at Homemetry Address Directory.

Property Details

This is a possession, which is situated at 119 Hickson Street, Ridge Spring, SC.

Facts

  • Built in 1990
  • Floor size 1,253 sqft
  • Bedrooms 4
  • Bathrooms 2

Misc

  • Units 1

Listing info

  • Last sold Jun 2011 for $46,000

Householders and Tenants for 119 Hickson St, Ridge Spring SC

Businesses

Organization Phone Number Additional Info
QUEENS OF DIAMOND OF RS THE
Industry:
Nonclassifiable Establishments
Type of Business:
Domestic

Purchase History

DateEventPriceSourceAgents
11/25/2008 Sold $10,000 Public records

Cost estimate history

YearTaxAssessmentMarket
2013 N/A $2,070 $34,500

Where is 119 Hickson St, Ridge Spring SC located on map?

Market Activities

To date, we have no information about market activities in 2025
Sep 2023 Sold
119 Hickson St
Price history :
  • Single Family
  • 1,256 sqft
  • 4 beds
  • 2 baths

Properties Nearby

Street AddressResidens/Landlords
Glady A Hickson, James L Hickson
 

FAQ about the house at 119 Hickson St, Ridge Spring, SC


NOTICE: You may not use RadioAwards or the information it provides to make decisions about employment, credit, housing or any other purpose that would require Fair Credit Reporting Act (FCRA) compliance. RadioAwards is not a Consumer Reporting Agency (CRA) as defined by the FCRA and does not provide consumer reports.