1100 6th St, Minneapolis MN  55411-4308 exterior 1100 6th St, Minneapolis MN  55411-4308 exterior 1100 6th St, Minneapolis MN  55411-4308 exterior

1100 6th St Minneapolis, MN 55411 / 4308

(UPDATED: 08/09/2025)
Sold Jun 2021
$487,000
Property Report

Information about property on 1100 6th St, Minneapolis MN, 55411-4308. Find out owner contacts, building history, price, neighborhood at Homemetry Address Directory.

Property Details

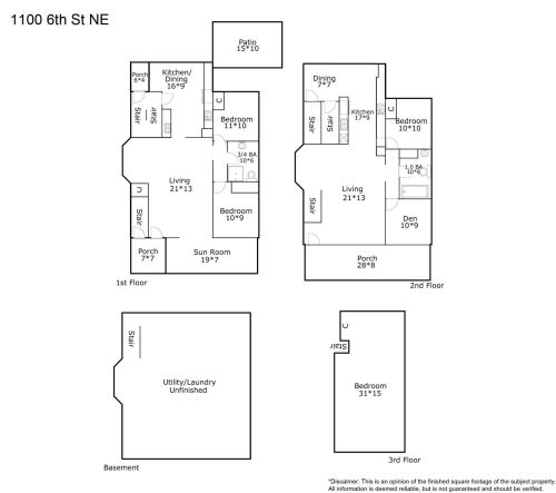
At 1100 6th Street, Minneapolis, MN there is a multi-family estate.

Facts

  • Built in 1910
  • Lot size 4,700 sqft
  • Construction Frame
  • Rooms 10
  • Bedrooms 5
  • Bathrooms 2
  • Stories 3 story with basement
  • Basement Basement (not specified)
  • Heating & Cooling
  • Heat type Forced air unit
  • Exterior Home Features
  • Exterior walls Stucco
  • Roof type Asphalt

Householders and Tenants for 1100 6th St, Minneapolis MN

Possible residents contact details

Person Name Phone Number Additional Info
Bradley D Sundquist Age: 69
Brett C Larson Age: 54
612-627-****
Christine A Doubek Age: 76
612-627-****
Henry D Muenzner
612-623-****
James E Lawson Age: 69
Jennifer K Doubek Age: 51
612-872-****
Jonah Pearson
612-281-****
Residential status:
Renter
Job:
Building and Grounds Cleaning and Maintenance Occupations
K Doubek Age: 79
612-627-****
Kevin Lithander
612-379-****
Kimberly A Doubek Age: 49
612-627-****
Lance M Breiland Age: 53
612-331-****
Marina Dykstra Apt # 2
Residential status:
Renter
Job:
Transportation and Material Moving Occupations
Mark L Breiland Age: 50
Marvin C Breiland Age: 77
612-331-****
Patricia A Moe Age: 64
Patty A Moe Age: 64
Patty Aamot
Peter C Muenzner Age: 56
612-623-****

Businesses

Organization Phone Number Additional Info
Braham Gilmer Monument Company
Industry:
Ret Misc Merchandise

Units - Who lives at 1100 6th St, Minneapolis MN

#2Marina Dykstra 55411-4308

Purchase History

DateEventPriceSourceAgents
07/19/2009 Sold $164,000 Public records
09/13/2006 Sold $273,000 Public records
06/29/2004 Sold $223,500 Public records
10/03/1997 Sold $57,543 Public records

PURCHASE HISTORY 1100 6th St, Minneapolis MN

10/03/199709/13/2006Date$0$20k$40k$60k$80k$100k$120k$140k$160k$180k$200k$220k$240k$260k$280kPrices

Cost estimate history

YearTaxAssessmentMarket
2014 $4,183 $191,500 N/A
2013 N/A N/A $191,500

Where is 1100 6th St, Minneapolis MN located on map?

Market Activities

To date, we have no information about market activities in 2025
Jun 2021 Sold
1100 6th St
Price history :
  • Multi-Family
  • 5 beds
  • 2 baths
Apr 2021 Sold
1100 6th St
Price history :
  • Multi-Family
  • 5 beds
  • 2 baths

View more

6th St Fire Incident History

To date, we have no information about fire incidents in 2025
15 Nov 2019 Dumpster or other outside trash receptacle fire
Property Use —
Street or road in commercial area
Area of Origin —
Outside area, other
19 Aug 2019 Passenger vehicle fire
Property Use —
Residential street, road or residential driveway
Area of Origin —
Cargo/trunk area - all vehicles
First Ignition —
Item First Ignited, Other
Heat Source —
Radiated heat from another fire
06 Jul 2019 Building fires
Property Use —
1 or 2 family dwelling
Area of Origin —
Wall surface: exterior
First Ignition —
Rubbish, trash, or waste
27 Jun 2019 Passenger vehicle fire
Property Use —
Residential street, road or residential driveway
Area of Origin —
Engine area, running gear, wheel area
Heat Source —
Radiated, conducted heat from operating equipment

View more

6 St Incidents registered in FEMA
(Federal Emergency Management Agency)

To date, we have no information about incidents registered in FEMA in 2025
18 Jun 2015 Unauthorized burning
Property Use —
1 or 2 family dwelling
10 Oct 2014 Unauthorized burning
Property Use —
1 or 2 family dwelling
29 Jan 2014 Carbon monoxide incident
Property Use —
1 or 2 family dwelling
08 Jan 2014 Cooking fire, confined to container

View more

Properties Nearby

Street AddressResidens/Landlords
1015 6th St, Minneapolis, MN 55414-1403
Multi-Family Home
  • 6 beds
  • 2 baths
  • Lot: 8,154 sqft
  • Built in 1900
Tara Alves, Anne M Bourn
1019 6th St, Minneapolis, MN 55414-1403
Multi-Family Home
  • 4 beds
  • 2 baths
  • Lot: 10,560 sqft
  • Built in 1924
Antonio Desimone, Brent Ehlenbach
1025 6th St, Minneapolis, MN 55414-1403
Multi-Family Home
  • Lot: 6,435 sqft
  • Built in 1930
Cabrini House, Cabrini Partnership
1105 6th St, Minneapolis, MN 55411-4307
Multi-Family Home
  • 4 beds
  • 2 baths
  • Lot: 8,532 sqft
  • Built in 1918
Barbara L Jamsa, Siobhan M Jamsa
1106 6th St, Minneapolis, MN 55411-4308
Single Family Residential
  • 2 beds
  • 1 bath
  • Lot: 5,522 sqft
  • Built in 1913
Lawrence W Demarr
1109 6th St, Minneapolis, MN 55411-4307
Single Family Residential
  • 7 beds
  • 2 baths
  • Lot: 5,776 sqft
  • Built in 1908
P L Belois, Sarah E Below
1110 6th St, Minneapolis, MN 55411-4308
Multi-Family Home
  • 4 beds
  • 2 baths
  • Lot: 4,160 sqft
  • Built in 1900
Nazli Ahmedova, Paul A Allis
1111 6th St, Minneapolis, MN 55411-4307
Single Family Residential
  • 3 beds
  • 1 bath
  • Lot: 5,560 sqft
  • Built in 1915
Brian J Aebly, Jennifer L Caron
1114 6th St, Minneapolis, MN 55411-4308
Multi-Family Home
  • 4 beds
  • 2 baths
  • Lot: 5,522 sqft
  • Built in 1906
Melissa M Chin, Mesias Dutan
1115 6th St, Minneapolis, MN 55411-4307
Multi-Family Home
  • 4 beds
  • 2 baths
  • Lot: 5,560 sqft
  • Built in 1900
Eric J Baldus, Chester L Benion
 

FAQ about the house at 1100 6th St, Minneapolis, MN


NOTICE: You may not use RadioAwards or the information it provides to make decisions about employment, credit, housing or any other purpose that would require Fair Credit Reporting Act (FCRA) compliance. RadioAwards is not a Consumer Reporting Agency (CRA) as defined by the FCRA and does not provide consumer reports.